Seecontainer Büro · Bad Blankenburg
10 Projektbilder
-
Neubau Seecontainer Büro - Perspektive, Bild: Niclas Necke -
Neubau Seecontainer Büro - Eingang, Bild: Niclas Necke -
Neubau Seecontainer Büro - WC, Bild: Niclas Necke -
Neubau Seecontainer Büro - Arbeitsplatz, Bild: Niclas Necke -
Neubau Seecontainer Büro - Küche, Bild: Niclas Necke -
Neubau Seecontainer Büro - Lounge, Bild: Niclas Necke -
Neubau Seecontainer Büro - Lageplan, Bild: Alexander Korb -
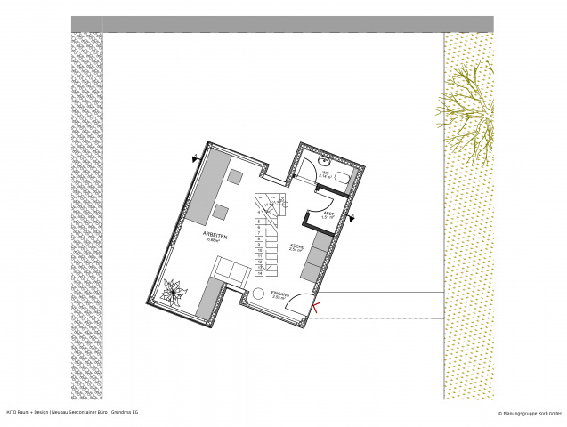
Neubau Seecontainer Büro - Grundriss EG, Bild: Alexander Korb -
Neubau Seecontainer Büro - Grundriss OG, Bild: Alexander Korb -
Neubau Seecontainer Büro - Schnitte A-A und B-B, Bild: Alexander Korb
Projektbeschreibung
Am Eingang des Schwarzatals in Bad Blankenburg verbindet dieses innovative Büro aus drei Seecontainern (1x40 Fuß und 2x20 Fuß) modernes Design mit nachhaltigen Umnutzungsprinzipien. Es bietet vier inspirierende Arbeitsplätze in einem funktionalen und ästhetisch ansprechenden Umfeld. Ein offener Meetingraum fördert kreative Zusammenarbeit, während Küche und WC den nötigen Komfort bieten. Jedes Element wurde sorgfältig geplant, um eine perfekte Balance zwischen Funktionalität und Design zu schaffen. Besuchen Sie uns und entdecken Sie, wie wir Architektur neu definieren – ein Ort, der nicht nur zum Arbeiten einlädt, sondern die Grenzen des Gewöhnlichen sprengt.
Projektdaten
Adresse
Rudolstädter Straße 2A
07422 Bad Blankenburg
Planungsbüro
Planungsgruppe Korb GmbH, Buttelstedt
Bauherr
KITO Raum + Design
Fertigstellung
Oktober 2022
Nutzfläche
51 m2
An dieser Stelle wird eine Google-Maps-Karte angezeigt, wenn Sie das Speichern der entsprechenden Cookies erlaubt haben. Dies können Sie über die Privatsphäre-Einstellungen jederzeit tun.
Zugeordnete Schlagworte und Sammlungen
Weitere Projekte des gleichen Büros (36)
-
Einfamilienhaus K
Ostramondra
Bahnhofstraße 16, 99636 Ostramondra
Planungsgruppe Korb GmbH, Buttelstedt
-
Einfamilienhaus vor dem Tore
Am Ettersberg
Vor dem Tore 1a, 99439 Am Ettersberg OT Buttelstedt
Planungsgruppe Korb GmbH, Buttelstedt
-
Wohnhaus mit Hanglage
Erfurt
An der Leite 7a, 99090 Erfurt OT Tiefthal
Planungsgruppe Korb GmbH, Buttelstedt
-
Innovationszentrum ZDS
Erfurt
Konrad-Zuse-Str. 19, 99099 Erfurt
Planungsgruppe Korb GmbH, Buttelstedt
-
InnenRaumDesign ImmobilienPoint 24
Erfurt
Kettenstraße 8, 99084 Erfurt
Planungsgruppe Korb GmbH, Buttelstedt
-
Frauensportstudio Smiles Pößneck
Pößneck
Naßäckerstraße 7, 07381 Pößneck
Planungsgruppe Korb GmbH, Buttelstedt
-
Kaserne Meiningen
Meiningen
Straße der Justiz, 98617 Meiningen
Planungsgruppe Korb GmbH, Buttelstedt
-
Konsum Kerspleben
Erfurt
Dorfplatz 10, 99198 Erfurt OT Kerspleben
Planungsgruppe Korb GmbH, Buttelstedt
-
SGB Halle Regensburg
Regensburg
Ohmstraße 10, 93055 Regensburg
Planungsgruppe Korb GmbH, Buttelstedt
-
Wohnüberbauung Maßfelder Weg
Meiningen
Maßfelder Weg, 98617 Meiningen
Planungsgruppe Korb GmbH, Buttelstedt
-
6 Wohnungen im Reihenhausstil
Weimar
Jenaer Straße 38 & 40, 99425 Weimar
Planungsgruppe Korb GmbH, Buttelstedt
-
Outdoorkaufhaus Unterwegs
Erfurt
Schlösserstraße 28, 99084 Erfurt
Planungsgruppe Korb GmbH, Buttelstedt
-
WGH Marstallstraße
Erfurt
Marstallstraße 14 & 15, 99084 Erfurt
Planungsgruppe Korb GmbH, Buttelstedt
-
Meyfartstraße Erfurt
Erfurt
Meyfartstraße, 99084 Erfurt OT Altstadt
Planungsgruppe Korb GmbH, Buttelstedt
-
Wohnen am Südpark Erfurt
Erfurt
Häßlerstraße 8, 99096 Erfurt OT Daberstedt
Planungsgruppe Korb GmbH, Buttelstedt
-
Flagshipfiliale Commerzbank
Stuttgart
Königsstraße, 70173 Stuttgart
Planungsgruppe Korb GmbH, Buttelstedt
-
Foyer Wohnungsbaugenossenschaft Erfurt
Erfurt
Johannestraße, 99084 Erfurt
Planungsgruppe Korb GmbH, Buttelstedt
-
Gerichtsviertel Meiningen
Meiningen
Straße der Justiz, 98617 Meiningen
Planungsgruppe Korb GmbH, Buttelstedt
-
Quartierentwicklung Fischergasse Meiningen
Meiningen
Fischergasse, 98617 Meiningen
Planungsgruppe Korb GmbH, Buttelstedt
-
Christian-Kittel-Straße Erfurt
Erfurt
Christian-Kittel-Straße, 99096 Erfurt
Planungsgruppe Korb GmbH, Buttelstedt
-
Haus an der Kirche Erfurt
Erfurt
An der Kirche 11, 99198 Erfurt OT Kerspleben
Planungsgruppe Korb GmbH, Buttelstedt
-
Ausbau einer Scheune
Vogtländisches Oberland
OT Arnsgrün, Eubenberger Straße 24, 07952 Vogtländisches Oberland
Planungsgruppe Korb GmbH, Buttelstedt
-
Wohnüberbauung Ringelberg
Erfurt
Walter-Gropius-Straße, 99085 Erfurt
Planungsgruppe Korb GmbH, Buttelstedt
-
Modernes Wohnen in der Brühlervorstadt
Erfurt
Overmannweg 19 & Overmannweg 20, 99094 Erfurt
Planungsgruppe Korb GmbH, Buttelstedt
-
WH Friedrich-Naumann-Straße
Erfurt
Friedrich-Naumann-Straße, 99096 Erfurt
Planungsgruppe Korb GmbH, Buttelstedt
-
Wohn- und Geschäftshaus Rudolstadt
Rudolstadt
Marktstraße I Alte Straße 2, 07407 Rudolstadt
Planungsgruppe Korb GmbH, Buttelstedt
Letzte Aktualisierung dieser Seite am: 05.06.2025. Alle Angaben auf dieser Seite werden durch das Büro Planungsgruppe Korb GmbH, Buttelstedt auf freiwilliger Basis verwaltet. Das Büro ist für den Inhalt dieser Seite selbst verantwortlich. Die Angaben werden von der Architektenkammer Thüringen nicht geprüft.