Wohnhaus mit Hanglage · Erfurt
15 Projektbilder
-
Giebelseite, Bild: Alexander Korb -
Wohnhaus mit Hanglage - Überhang, Bild: Alexander Korb -
Wohnhaus mit Hanglage - Geländehöhen, Bild: Alexander Korb -
Wohnhaus mit Hanglage - Hoffläche, Bild: Alexander Korb -
Wohnhaus mit Hanglage - Terrassenfläche, Bild: Alexander Korb -
Wohnhaus mit Hanglage - Kinderzimmer, Bild: Alexander Korb -
Wohnhaus mit Hanglage - Fensterdetail, Bild: Alexander Korb -
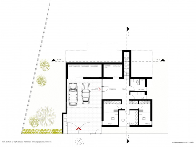
Wohnhaus mit Hanglage - Grundriss EG, Bild: Alexander Korb -
Wohnhaus mit Hanglage - Grundriss Obergeschoss, Bild: Alexander Korb -
Wohnhaus mit Hanglage - Schnitt A-A, Bild: Alexander Korb -
Wohnhaus mit Hanglage - Schnitt B-B, Bild: Alexander Korb -
Wohnhaus mit Hanglage - Ansicht Nordost, Bild: Alexander Korb -
Wohnhaus mit Hanglage - Ansicht Nordwest, Bild: Alexander Korb -
Wohnhaus mit Hanglage - Ansicht Südost, Bild: Alexander Korb -
Wohnhaus mit Hanglage - Ansicht Südwest, Bild: Alexander Korb
Projektbeschreibung
Das Projekt umfasst eine hangbegleitende Bebauung, die geschickt die topographischen Gegebenheiten nutzt. Ein zentraler Aspekt war die Trennung der Funktionen, um die Rückzugsräume der Eltern und der Kinder klar zu differenzieren. Die Baukörper sind durch den Verlauf des Geländes u. der Formsprache leicht voneinander abgesetzt, wodurch belebte u. private Zone für den Außenbereich entstehen. Die monolithische Formsprache des Gebäudes wird durch eine Fassade aus Holz u. Metall geprägt, die eine warme, aber moderne Ausstrahlung erzielt. So wurde eine starke visuelle Präsenz geschaffen.
Große Fensterflächen sorgen für Licht u. Ausblicke, während kleinere Fenster zur Straße hin für Privatsphäre sorgen. Das Konzept vereint Funktionalität, Ästhetik und einen integrativen Umgang mit der Umgebung.
Projektdaten
Adresse
An der Leite 7a
99090 Erfurt OT Tiefthal
Planungsbüro
Planungsgruppe Korb GmbH, Buttelstedt
Bauherr
Fam. Dietsch und Topf
Fertigstellung
April 2024
Nutzfläche
155 m2
An dieser Stelle wird eine Google-Maps-Karte angezeigt, wenn Sie das Speichern der entsprechenden Cookies erlaubt haben. Dies können Sie über die Privatsphäre-Einstellungen jederzeit tun.
Zugeordnete Schlagworte und Sammlungen
Weitere Projekte des gleichen Büros (36)
-
Seecontainer Büro
Bad Blankenburg
Rudolstädter Straße 2A, 07422 Bad Blankenburg
Planungsgruppe Korb GmbH, Buttelstedt
-
Einfamilienhaus K
Ostramondra
Bahnhofstraße 16, 99636 Ostramondra
Planungsgruppe Korb GmbH, Buttelstedt
-
Einfamilienhaus vor dem Tore
Am Ettersberg
Vor dem Tore 1a, 99439 Am Ettersberg OT Buttelstedt
Planungsgruppe Korb GmbH, Buttelstedt
-
Innovationszentrum ZDS
Erfurt
Konrad-Zuse-Str. 19, 99099 Erfurt
Planungsgruppe Korb GmbH, Buttelstedt
-
InnenRaumDesign ImmobilienPoint 24
Erfurt
Kettenstraße 8, 99084 Erfurt
Planungsgruppe Korb GmbH, Buttelstedt
-
Frauensportstudio Smiles Pößneck
Pößneck
Naßäckerstraße 7, 07381 Pößneck
Planungsgruppe Korb GmbH, Buttelstedt
-
Kaserne Meiningen
Meiningen
Straße der Justiz, 98617 Meiningen
Planungsgruppe Korb GmbH, Buttelstedt
-
Konsum Kerspleben
Erfurt
Dorfplatz 10, 99198 Erfurt OT Kerspleben
Planungsgruppe Korb GmbH, Buttelstedt
-
SGB Halle Regensburg
Regensburg
Ohmstraße 10, 93055 Regensburg
Planungsgruppe Korb GmbH, Buttelstedt
-
Wohnüberbauung Maßfelder Weg
Meiningen
Maßfelder Weg, 98617 Meiningen
Planungsgruppe Korb GmbH, Buttelstedt
-
6 Wohnungen im Reihenhausstil
Weimar
Jenaer Straße 38 & 40, 99425 Weimar
Planungsgruppe Korb GmbH, Buttelstedt
-
Outdoorkaufhaus Unterwegs
Erfurt
Schlösserstraße 28, 99084 Erfurt
Planungsgruppe Korb GmbH, Buttelstedt
-
WGH Marstallstraße
Erfurt
Marstallstraße 14 & 15, 99084 Erfurt
Planungsgruppe Korb GmbH, Buttelstedt
-
Meyfartstraße Erfurt
Erfurt
Meyfartstraße, 99084 Erfurt OT Altstadt
Planungsgruppe Korb GmbH, Buttelstedt
-
Wohnen am Südpark Erfurt
Erfurt
Häßlerstraße 8, 99096 Erfurt OT Daberstedt
Planungsgruppe Korb GmbH, Buttelstedt
-
Flagshipfiliale Commerzbank
Stuttgart
Königsstraße, 70173 Stuttgart
Planungsgruppe Korb GmbH, Buttelstedt
-
Foyer Wohnungsbaugenossenschaft Erfurt
Erfurt
Johannestraße, 99084 Erfurt
Planungsgruppe Korb GmbH, Buttelstedt
-
Gerichtsviertel Meiningen
Meiningen
Straße der Justiz, 98617 Meiningen
Planungsgruppe Korb GmbH, Buttelstedt
-
Quartierentwicklung Fischergasse Meiningen
Meiningen
Fischergasse, 98617 Meiningen
Planungsgruppe Korb GmbH, Buttelstedt
-
Christian-Kittel-Straße Erfurt
Erfurt
Christian-Kittel-Straße, 99096 Erfurt
Planungsgruppe Korb GmbH, Buttelstedt
-
Haus an der Kirche Erfurt
Erfurt
An der Kirche 11, 99198 Erfurt OT Kerspleben
Planungsgruppe Korb GmbH, Buttelstedt
-
Ausbau einer Scheune
Vogtländisches Oberland
OT Arnsgrün, Eubenberger Straße 24, 07952 Vogtländisches Oberland
Planungsgruppe Korb GmbH, Buttelstedt
-
Wohnüberbauung Ringelberg
Erfurt
Walter-Gropius-Straße, 99085 Erfurt
Planungsgruppe Korb GmbH, Buttelstedt
-
Modernes Wohnen in der Brühlervorstadt
Erfurt
Overmannweg 19 & Overmannweg 20, 99094 Erfurt
Planungsgruppe Korb GmbH, Buttelstedt
-
WH Friedrich-Naumann-Straße
Erfurt
Friedrich-Naumann-Straße, 99096 Erfurt
Planungsgruppe Korb GmbH, Buttelstedt
-
Wohn- und Geschäftshaus Rudolstadt
Rudolstadt
Marktstraße I Alte Straße 2, 07407 Rudolstadt
Planungsgruppe Korb GmbH, Buttelstedt
Letzte Aktualisierung dieser Seite am: 05.06.2025. Alle Angaben auf dieser Seite werden durch das Büro Planungsgruppe Korb GmbH, Buttelstedt auf freiwilliger Basis verwaltet. Das Büro ist für den Inhalt dieser Seite selbst verantwortlich. Die Angaben werden von der Architektenkammer Thüringen nicht geprüft.