Neubau Primarstufengebäude und Zwei-Feld-Sporthalle der Evangelischen Gemeinschaftsschule Erfurt
Hartung & Ludwig Architektur- und Planungsgesellschaft mbH, Weimar
16 Projektbilder
-
Evangelische Gemeinschaftsschule Erfurt - Primarschulgebäude und Zwei-Feld-Sporthalle Durchgang, Bild: Evangelische Schulstiftung in Mitteldeutschland St. Johannes, Beate Lippold -
Evangelische Gemeinschaftsschule Erfurt - Primarschulgebäude mit Fluchttreppe und Zwei-Feld-Sporthalle, Bild: Evangelische Schulstiftung in Mitteldeutschland St. Johannes, Beate Lippold -
Primarschulgebäude, Bild: Evangelische Schulstiftung in Mitteldeutschland St. Johannes, Beate Lippold -
Zweifeld-Sporthalle, Bild: Evangelische Schulstiftung in Mitteldeutschland St. Johannes, Beate Lippold -
Evangelische Gemeinschaftsschule Erfurt - Zwei-Feld-Sporthalle Fassade Fensterband, Bild: Evangelische Schulstiftung in Mitteldeutschland St. Johannes, Beate Lippold -
Evangelische Gemeinschaftsschule Erfurt - Freianlagen und Zwei-Feld-Sporthalle, Bild: Evangelische Schulstiftung in Mitteldeutschland St. Johannes, Beate Lippold -
Evangelische Gemeinschaftsschule Erfurt - Primarschulgebäude Klassenraum, Bild: Evangelische Schulstiftung in Mitteldeutschland St. Johannes, Beate Lippold -
Kletterwand im Primarschulgebäude, Bild: Evangelische Schulstiftung in Mitteldeutschland St. Johannes, Beate Lippold -
Evangelische Gemeinschaftsschule Erfurt - Zwei-Feld-Sporthalle Hallenbereich, Bild: Evangelische Schulstiftung in Mitteldeutschland St. Johannes, Beate Lippold -
Zweifeld-Sporthalle mit Abtrennung, Bild: Evangelische Schulstiftung in Mitteldeutschland St. Johannes, Beate Lippold -
Evangelische Gemeinschaftsschule Erfurt - Zwei-Feld-Sporthalle Galerieebene, Bild: Evangelische Schulstiftung in Mitteldeutschland St. Johannes, Beate Lippold -
Evangelische Gemeinschaftsschule Erfurt - Zwei-Feld-Sporthalle Foyer, Bild: Evangelische Schulstiftung in Mitteldeutschland St. Johannes, Beate Lippold -
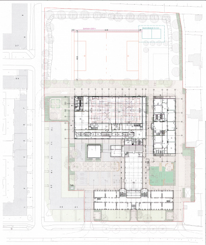
Lageplan Neubauten, Bild: Anne Hartung -
Evangelische Gemeinschaftsschule Erfurt - Grundrisse EG Neubauten, Bild: Anne Hartung -
Evangelische Gemeinschaftsschule Erfurt - Schnitt Neubau Primarschulgebäude, Bild: Anne Hartung -
Evangelische Gemeinschaftsschule Erfurt - Schnitt Neubau Sporthalle, Bild: Anne Hartung
Projektbeschreibung
Neubau eines Primarstufengebäudes mit Schulhöfen und einer Zwei-Feld-Sporthalle auf dem Campus der Evangelischen Gemeinschaftsschule Erfurt.
Die Evangelische Gemeinschaftsschule Erfurt ist eine Gemeinschaftsschule gemäß Thüringer Schulgesetz (§ 6a ThürSchulG) und versteht sich als Lern- und Lebensgemeinschaft, offen für junge Menschen unterschiedlicher Nationalitäten, Religionen und Lebensanschauungen, unabhängig von Geschlecht und sozialer Herkunft.
Als reformpädagogisch geprägte, inklusive Ganztagsschule steht hier das gemeinsame Lernen im Mittelpunkt des Schulalltags. Dabei ist eine ganzheitliche Erziehung Grundlage der pädagogischen Arbeit. Als erste Erfurtplan-Schule basieren die Lehransätze auf verschiedenen reformpädagogischen Konzepten. Wissensvermittlung, Glaubensbildung und Wertevermittlung stehen dabei gleichermaßen im Fokus und werden durch lebens-praktische und berufsorientierte Unterrichtseinheiten im Schulalltag ergänzt.
Der Campus der Evangelischen Gemeinschaftsschule Erfurt wird in mehreren Bauabschnitten zu einem bestens ausgestatten, modernen Schulstandort entwickelt.
Der erste Bauabschnitt wurde erfolgreich beendet. Zwei-Feld-Halle und Primarstufengebäude nebst dazu gehörigen Freianlagen wurden rechtzeitig zum Schuljahr 2024/25 fertiggestellt. Ebenso konnte in diesem Zuge der Umbau der alten Turnhalle zur Mensa abgeschlossen werden.
Das Primarstufengebäude
Das Primarstufengebäude wurde im nordwestlichen Grundstücksbereich als zweigeschossiger Riegel mit Flachdachabschluss errichtet. Das Raumkonzept sieht insgesamt acht Klassenzimmer, zwei Differenzierungsräume, zwei Förderräume, vier Lernorte, 4 Garderoben, ein Lehrerzimmer sowie zwei großzügige Hort- und Bewegungsräume vor. Mobile Schiebetrennwände innerhalb der Hortbereiche in beiden Geschossen ermöglichen eine flexible Nutzung der Räume. Die einzelnen Cluster bestehen aus jeweils zwei Klassenräumen, einer Garderobe, einem Lernort sowie einem Förder- oder Differenzierungsraum. Diese werden beidseitig an den Bewegungs- und Hortbereich angeschlossen, sodass dieser das Zentrum der Primarschule darstellt.
Die Haupterschließung des Gebäudes erfolgt zentral über einen hervortretenden, vollflächig verglasten Windfang in Form einer Pfosten-Riegelkonstruktion. Als zusätzliche Nebenzugänge dienen die großzügig verglasten Garderoben. Das Obergeschoss wird über eine dreiläufige halbgewendelte Stahlbetontreppe mit Zwischenpodesten bzw. barrierefrei über einen Aufzug erschlossen.
Das Gebäude wurde in Massivbauweise aus Stahlbeton und KS-Mauerwerk errichtet. Den oberen Abschluss bildet ein gedämmtes Flachdach mit umlaufender Attika. Die Gebäudehülle erhielt ein Wärmedämmverbundsystem mit abgesetztem Sockelbereich aus farbig schattierten Klinkerverblendern im Erdgeschoss und einem fein strukturierten Putz oberhalb des Fassadensockels. Die Belichtung der Unterrichtsräume erfolgt über mehrteilige großformatige Kunststofffenster, die für den sommerlichen Wärmeschutz mit elektrisch betriebenen Raffstoreanlagen ausgestattet sind.
Die Böden der Sanitärbereiche und Wirtschaftsräume erhielten großformatige Fliesen, die weiteren Nutzflächen wurden mit einem strapazierfähigen Bodenbelag aus Linoleum ausgestattet. Die Anforderungen an die Raumakustik wurden mit der Raumnutzung entsprechenden Akustikplatten im Deckenbereich erfüllt.
Die Zwei-Feld-Sporthalle
Im westlichen Grundstücksbereich ist für den Sportunterricht eine Zwei-Feld-Halle errichtet worden. Dieses besteht aus zwei Gebäudeteilen: einem erhöhten Hallenbereich und vorgelagerten Flachdachriegeln, in denen sich Sanitärtrakt und Flur für externe Besucher befinden. Die Gesamtausdehnung des Gebäudes beträgt ca. 61,5 m x 41,3 m. Der Baukörper bindet mit seinem Vorbau an die Mensa an, um eine räumliche Trennung der Schulhofflächen von Primar- und Sekundarstufe zu schaffen.
In der Zwei-Feld-Halle wird der Sportunterricht für 700 Schüler der Gemeinschaftsschule realisiert. Zum Baukörper gehören die 22 x 45 m große, mittig teilbare Zweifeldhalle mit zugehöriger Galerieebene, ein Gymnastikraum, ein Raum zur sportergänzenden Nutzung, ein zweigeschossiger Vereinsbereich sowie alle erforderlichen Nebenräume. Diese untergliedern sich in Lagerräume zur Unterbringung von Sportgeräten, Übungsleiter- bzw. Erste-Hilfe-Raum, Sanitär- und Umkleideräume. Zusätzlich schließen öffentliche Toiletten für Besucher und externe Nutzer sowie ein barrierefreier Sanitär-/Umkleideraum an den Eingangsbereich an.
Das Raumkonzept der Zweifeldhalle inklusive Größen und Höhen orientiert sich an der DIN 18032.
Der Hallenbereich mit einer lichten Raumhöhe von 7 m wurde als Rahmenkonstruktion mit Stahlbetonstützen ausgeführt. Die Wände zwischen den Stahlbetonstützen und die der südlich angegliederten Gymnastik- und Vereinsräume sind aus Stahlbeton mit Wärmedämmverbundsystem. Alle massiven Wände des eingeschossigen Sanitärtraktes einschließlich der Räume unterhalb der Galerieebene wurden in KS-Mauerwerk errichtet. Die Belichtung des gesamten Hallenbereiches erfolgt über mehrteilige, festverglaste Lichtbänder im oberen Drittel der Außenwände. Alle Fensterbänder erhielten als Maßnahme für den sommerlichen Wärmeschutz Sonnenschutzisoliergläser.
Die Wandflächen im Hallenbereich oberhalb der Prallwände erhielten bis in Höhe Oberkante Fensterbänder eine akustisch wirksame Wandbekleidung aus weißzementgebundenen Holzwolle-Mehrschichtplatten. In den gesamten Sport- und Gymnastikbereichen inklusive zugehöriger Nebenräume wurden Linoleumböden entsprechend ihrer Nutzungsbeanspruchung und akustisch wirksame Ringabsorber gemäß Akustikkonzept installiert. An der Wand oder dem Boden befestigte Sportgeräte wurden als Einbauten vorgesehen. In Abstimmung mit dem Bauherrn umfasst dies schwenkbare Sprossenwände, Kletterstangen, Klettertaue, Basketballkörbe als Decken- bzw. Wandgeräte und Schaukelringe. Für wandseitige Einbauten wurden Nischen innerhalb der Prallwandebene geplant. Für bewegliche Sportelemente wie Handballtore, Steckreck, Spannreck, Startblöcke, Volleyball- und Badmintonsäulen wurden die notwendigen Bodenhülsen in der Planung berücksichtigt.
Projektdaten
Adresse
Eugen-Richter-Straße 22
99085 Erfurt
Planungsbüros
Hartung & Ludwig Architektur- und Planungsgesellschaft mbH, Weimar
GOLDBECK Ost GmbH, Amt Wachsenburg
W&R Wittig & Rietig GmbH Landschaftsarchitektur, Weimar
Bauherr
Evangelische Schulstiftung Mitteldeutschland
Fertigstellung
August 2024
An dieser Stelle wird eine Google-Maps-Karte angezeigt, wenn Sie das Speichern der entsprechenden Cookies erlaubt haben. Dies können Sie über die Privatsphäre-Einstellungen jederzeit tun.
Zugeordnete Schlagworte und Sammlungen
Weitere Projekte des gleichen Büros (24)
-
Seniorenwohngemeinschaften „An der Wipper“ Sondershausen
Sondershausen
Weizenstraße 19, 99706 Sondershausen
Hartung & Ludwig Architektur- und Planungsgesellschaft mbH, Weimar
W&R Wittig & Rietig GmbH Landschaftsarchitektur, Weimar -
Druckerei ODD, Bad Kreuznach
Bad Kreuznach
Otto-Meffert Straße 5, 55543 Bad Kreuznach
Hartung & Ludwig Architektur- und Planungsgesellschaft mbH, Weimar
-
Druckerei Laserline, Berlin
Berlin
Scheringstraße 1, 13355 Berlin
Hartung & Ludwig Architektur- und Planungsgesellschaft mbH, Weimar
-
Haus für Generationen Altenburg
Altenburg
Barlachstraße 26, 04600 Altenburg
Hartung & Ludwig Architektur- und Planungsgesellschaft mbH, Weimar
-
Ambulant betreutes Wohnen Meuselwitz
Meuselwitz
Penkwitzer Weg 16, 04610 Meuselwitz
Hartung & Ludwig Architektur- und Planungsgesellschaft mbH, Weimar
-
Senioren-WG in Bad Tabarz
Tabarz
Bahnhofstraße 20, 96528 Tabarz
Hartung & Ludwig Architektur- und Planungsgesellschaft mbH, Weimar
-
Seniorenresidenz im Prinzenpalais Gotha
Gotha
Mozartstraße 1, 99867 Gotha
Hartung & Ludwig Architektur- und Planungsgesellschaft mbH, Weimar
-
Sanierung Mehrfamilienhaus Altstadt Weimar
Weimar
Schloßgasse, 21, 99423 Weimar OT Altstadt
Hartung & Ludwig Architektur- und Planungsgesellschaft mbH, Weimar
-
Sanierung Ro 80 Mehrfamilienhaus Weimar
Weimar
Eduard-Rosenthal-Straße 80, 99423 Weimar
Hartung & Ludwig Architektur- und Planungsgesellschaft mbH, Weimar
-
Ambulant betreutes Seniorenwohnen Mengersgereuth-Hämmern
Mengersgereuth-Hämmern
Mengersgereuth-Hämmern
Hartung & Ludwig Architektur- und Planungsgesellschaft mbH, Weimar
-
Ersatzanbau und Sanierung der Turnhalle der Evangelischen Grundschule Erfurt
Erfurt
Regierungsstraße 42 a, 99084 Erfurt
Hartung & Ludwig Architektur- und Planungsgesellschaft mbH, Weimar
-
Höfe an der Hafenbahn in Halle
Halle (Saale)
Franz-Heyl-Straße , 06112 Halle (Saale)
Hartung & Ludwig Architektur- und Planungsgesellschaft mbH, Weimar
-
Kita Kindernest Rodebach in Zella Mehlis
Zella-Mehlis
Rodebachstraße 77a, 98544 Zella-Mehlis
Hartung & Ludwig Architektur- und Planungsgesellschaft mbH, Weimar
-
Dosfarm, Almeta
Almaty
Chaplygin street 3, KZ-050061 Almaty
Hartung & Ludwig Architektur- und Planungsgesellschaft mbH, Weimar
-
Senioren-WG in Neuhaus-Schierschnitz
Neuhaus-Schierschnitz
Sonneberger Straße 12 / 12a, 96524 Neuhaus-Schierschnitz
Hartung & Ludwig Architektur- und Planungsgesellschaft mbH, Weimar
-
Samsonmed, Sankt Petersburg
Sankt Petersburg
Moskovskoye sh., 13, 196158 Sankt Petersburg
Hartung & Ludwig Architektur- und Planungsgesellschaft mbH, Weimar
-
Härterei Reese, Weimar
Weimar
Otto-Schott-Straße 4, 99427 Weimar
Hartung & Ludwig Architektur- und Planungsgesellschaft mbH, Weimar
-
Exklusives Wohnen in Weimar
Weimar
Bodestraße, 99425 Weimar OT Südstadt
Hartung & Ludwig Architektur- und Planungsgesellschaft mbH, Weimar
-
Pflegeheim Legefeld
Weimar
Kastanienallee 5, 99428 Weimar OT Legefeld
Hartung & Ludwig Architektur- und Planungsgesellschaft mbH, Weimar
-
Nahversorgungszentrum in Dresden
Dresden
Straßburger Platz, 01069 Dresden
Hartung & Ludwig Architektur- und Planungsgesellschaft mbH, Weimar
-
Vollautomatisches Hochregallager in Weimar
Weimar
Ettersburgerstraße 19, 99427 Weimar OT Nordstadt
Hartung & Ludwig Architektur- und Planungsgesellschaft mbH, Weimar
-
Kinderkrippe Ringelblümchen, Erfurt
Erfurt
Oskar-Schlemmer-Straße 33, 99085 Erfurt OT Ringelberg
Hartung & Ludwig Architektur- und Planungsgesellschaft mbH, Weimar
Letzte Aktualisierung dieser Seite am: 05.06.2025. Alle Angaben auf dieser Seite werden durch das Büro Hartung & Ludwig Architektur- und Planungsgesellschaft mbH, Weimar auf freiwilliger Basis verwaltet. Das Büro ist für den Inhalt dieser Seite selbst verantwortlich. Die Angaben werden von der Architektenkammer Thüringen nicht geprüft.