Einbau einer Brennblase in Echter Nordhäuser Traditionsbrennerei · Nordhausen
8 Projektbilder
-
Bestandsansicht zum einstigen Kesselraum, Bild: Pia Wienrich -
Brennblase, Bild: Pia Wienrich -
Blick aus dem Verkaufsbereich durch die Zwischentür zur Brennblase, Bild: Pia Wienrich -
Blick zum Bereich der Brennblase neben dem Verkaufsladen, Bild: Pia Wienrich -
Blick zum Raum mit der Brennblase im Ensemble, Bild: Pia Wienrich -
Grundriss Bestand (Auszug), Bild: Pia Wienrich -
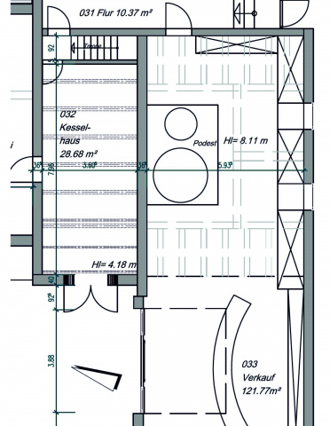
Grundriss Entwurf (Auszug), Bild: Pia Wienrich -
Brennblase, Bild: Pia Wienrich
Projektbeschreibung
Nordhausen ist bekannt für seinen Korn. 1507 wurde mit der Brennerei begonnen. Die Stadt wurde seitdem von ihr und den Begleithandwerkskünsten (u.a. Böttcherei und Müllerei) sowie von der Landwirtschaft geprägt.
Die Echte Nordhäuser Traditionsbrennerei ist die letzte traditionelle Brennerei. Sie lebt mit Errichtung der Kleinbrennblase Tradition fort. Es wurde der einstige Kesselraum entkernt und die Brennblase mit separater Erschließung vom Hof und für Einblicke vom Verkaufsladen installiert. Die Alu-Glas-Tür hinter der bauzeitlichen Rundbogentür lädt dabei schon von weitem neugierige Besucher ein. Für die Anlagenaufstellung wurde die darunterliegende Decke statisch und der Raum brandschutztechnisch ertüchtigt. Die Technik dient zum Schaubrennen während der Öffnungszeiten der Ausstellung. Das Angebot, Einblick in die Brennkunst zu bekommen, ergänzt die Führungen durch die hundertjährige Brennerei mit ihrer weit bekannten Korn-Historie.
Projektdaten
Adresse
Grimmelallee 11
99734 Nordhausen
Planungsbüro
Architektur Contor Wienrich GmbH, Nordhausen
Bauherr
Nordbrand Nordhausen GmbH
Fertigstellung
August 2020
Nutzfläche
14 m2
An dieser Stelle wird eine Google-Maps-Karte angezeigt, wenn Sie das Speichern der entsprechenden Cookies erlaubt haben. Dies können Sie über die Privatsphäre-Einstellungen jederzeit tun.
Zugeordnete Schlagworte und Sammlungen
Weitere Projekte des gleichen Büros (26)
-
Neanderklinik Ilfeld | Brandschutzertüchtigung
Harztor
Neanderplatz 4, 99768 Harztor OT Ilfeld
Architektur Contor Wienrich GmbH, Nordhausen
Tag der Architektur 2026
Samstag, 27.06.2026 – geöffnet 14:00-16:00, Führungen 14:00, 15:00 (Treffpunkt: Haupteingang), ggf. Führung Krypta mit Vortrag zur Geschichte Ilfeld
Sonntag, 28.06.2026 – geöffnet 10:00-12:00 Uhr, Führungen 10:00, 11:00 (Treffpunkt: Haupteingang), Besichtigung allgemeiner Bereiche, ggf. Führung durch die Krypta mit Vortrag zur Geschichte Ilfeld
-
Neubau Werkstatt-Lager und Erweiterung Freilager für den Wasserverband Nordhausen
Nordhausen
Hallesche Straße 132, 99734 Nordhausen
Architektur Contor Wienrich GmbH, Nordhausen
G Ö T Z E, Nordhausen
-
GreenOne | Neubau Mehrfamilienhaus
Nordhausen
Stolberger Straße 18, 99734 Nordhausen
Architekturbüro Dr. Michael Flagmeyer, Nordhausen
LA21 Landschaftsarchitektur®, Nordhausen | Architektur Contor Wienrich GmbH, Nordhausen
-
Komplettsanierung Sporthalle am Staatlichen Berufsschulzentrum Nordhausen
Nordhausen
Straße der Genossenschaften 168, 99734 Nordhausen
Architektur Contor Wienrich GmbH, Nordhausen
Architekturbüro Tobias Winkler, Nordhausen | G Ö T Z E, Nordhausen
-
Lerntherapeutische Praxis
Nordhausen
Rüdigsdorfer Straße 16, 99734 Nordhausen
Architektur Contor Wienrich GmbH, Nordhausen
-
Komplexe Sanierung/Denkmalschutz - Amtsgericht Sondershausen
Sondershausen
Ulrich-von-Hutten-Straße 2, 99706 Sondershausen
Architektur Contor Wienrich GmbH, Nordhausen
-
Modernisierung/Umbau Sporthalle Niedersachswerfen
Harztor
Albertstraße 9a, 99768 Harztor OT Niedersachswerfen
Architektur Contor Wienrich GmbH, Nordhausen
G Ö T Z E, Nordhausen
-
Hochschule Nordhausen | Gebäude 22 Sporthalle
Nordhausen
Weinbergstraße 4, 99734 Nordhausen OT Nordhausen
Architektur Contor Wienrich GmbH, Nordhausen
-
Rettungswache Halle | am BG Klinikum Bergmannstrost
Halle (Saale)
Merseburger Str. 165, 06112 Halle (Saale)
Architektur Contor Wienrich GmbH, Nordhausen
-
Umbau/Umnutzung ehem. Kinder- und Jugendpsychiatrie in 31 weitgehend barrierefreie Wohnungen
Nordhausen
Alexander-Puschkin-Straße 17 , 99734 Nordhausen
Architektur Contor Wienrich GmbH, Nordhausen
-
Pfarr- und Gemeindehaus zur Altendorfer Kirche, Sanierung Gemeindesaal
Nordhausen
Wallrothstraße 26 , 99734 Nordhausen OT Nordhausen
Architektur Contor Wienrich GmbH, Nordhausen
-
Erweiterung und Umbau Kreissparkasse Nordhausen im 2. OG
Nordhausen
Kornmarkt 9, 99734 Nordhausen OT Nordhausen
Architektur Contor Wienrich GmbH, Nordhausen
-
Wohnhaus Dr. Wilms
Nordhausen
Altendorfer Stiege 1, 99734 Nordhausen
Architektur Contor Wienrich GmbH, Nordhausen
-
Umnutzung Medizinische Fachschule Trakt I zum Wohnen
Nordhausen
Dr. Robert-Koch-Straße 41a-c, 99734 Nordhausen
Architektur Contor Wienrich GmbH, Nordhausen
-
Neubau Gemeindezentrum für die Evangelisch-Freikirchliche Gemeinde
Nordhausen
Grimmelallee 51, 99734 Nordhausen
Architektur Contor Wienrich GmbH, Nordhausen
-
Wasserwerk Nordhausen, Besucherzentrum
Nordhausen
Alexander-Puschkin-Straße 13, 99734 Nordhausen
Architektur Contor Wienrich GmbH, Nordhausen
-
Südharz-Krankenhaus – Sanierung Bettenhaus1/ Neubau Bettenhaus 3
Nordhausen
Dr.-Robert-Koch-Straße 39, 99734 Nordhausen
Architektur Contor Wienrich GmbH, Nordhausen
-
Umbau/Modernisierung Wohnquartier „Untere Rautenstraße“
Nordhausen
Rautenstraße 28 - 36, Vor dem Vogel 08 - 14, 99734 Nordhausen
Architektur Contor Wienrich GmbH, Nordhausen
-
Südharz-Krankenhaus Nordhausen, Neubau Bettenhaus2/Umbau Komplement
Nordhausen
Dr.-Robert-Koch-Straße 39, 99734 Nordhausen
Architektur Contor Wienrich GmbH, Nordhausen
-
Dreifelder-Sporthalle
Bleicherode
Gartenstraße 67, Bleicherode
Architektur Contor Wienrich GmbH, Nordhausen
-
Zentrales Lehrgebäude der Fachhochschule Nordhausen
Nordhausen
Am Weinberg, 99734 Nordhausen
Architektur Contor Wienrich GmbH, Nordhausen
-
Wohn- und Geschäftshaus Töpferstraße 41 + 42 , 99734 Nordhausen
Nordhausen
Töpferstraße 41/42, 99734 Nordhausen
Architektur Contor Wienrich GmbH, Nordhausen
Götze Landschaftsarchitektur, Nordhausen
-
Neugestaltung Eingangs- und Aufnahmebereich im Südharz Klinikum
Nordhausen
Dr. Robert-Koch-Straße 39, 99734 Nordhausen OT Nordhausen
Architektur Contor Wienrich GmbH, Nordhausen
-
Staatl. Reg. Förderzentrum "Johann Heinrich Pestalozzi"
Nordhausen
Geiersberg 7, 99734 Nordhausen
Architektur Contor Wienrich GmbH, Nordhausen
-
Umbau/Modernisierung Wohnquartier Conrad-Fromann-Straße 11-27
Nordhausen
Conrad-Fromann-Straße 11-27, 99734 Nordhausen OT Nordhausen - Ost
Architektur Contor Wienrich GmbH, Nordhausen
-
Umbau und Modernisierung Villa "Kleine Wege®- Förderung autistischer Menschen"
Nordhausen
Geiersberg 12, 99734 Nordhausen
Architektur Contor Wienrich GmbH, Nordhausen
Letzte Aktualisierung dieser Seite am: 15.11.2021. Alle Angaben auf dieser Seite werden durch das Büro Architektur Contor Wienrich GmbH, Nordhausen auf freiwilliger Basis verwaltet. Das Büro ist für den Inhalt dieser Seite selbst verantwortlich. Die Angaben werden von der Architektenkammer Thüringen nicht geprüft.