Erweiterungsneubau Berufsschulzentrum Sondershausen
9 Projektbilder
-
Hauptansicht, Bild: hks architekten BDA -
Fassadenbekleidung, Bild: hks architekten BDA -
Treppenraum Haupteingang, Bild: hks architekten BDA -
Mensa/Aula mit Massivholzwänden, Bild: hks architekten BDA -
Haupttreppe, Bild: hks architekten BDA -
Klassenzimmer, Bild: hks architekten BDA -
Aufenthaltsbereiche, Bild: hks architekten BDA -
Entwurfsansatz, Bild: hks architekten BDA -
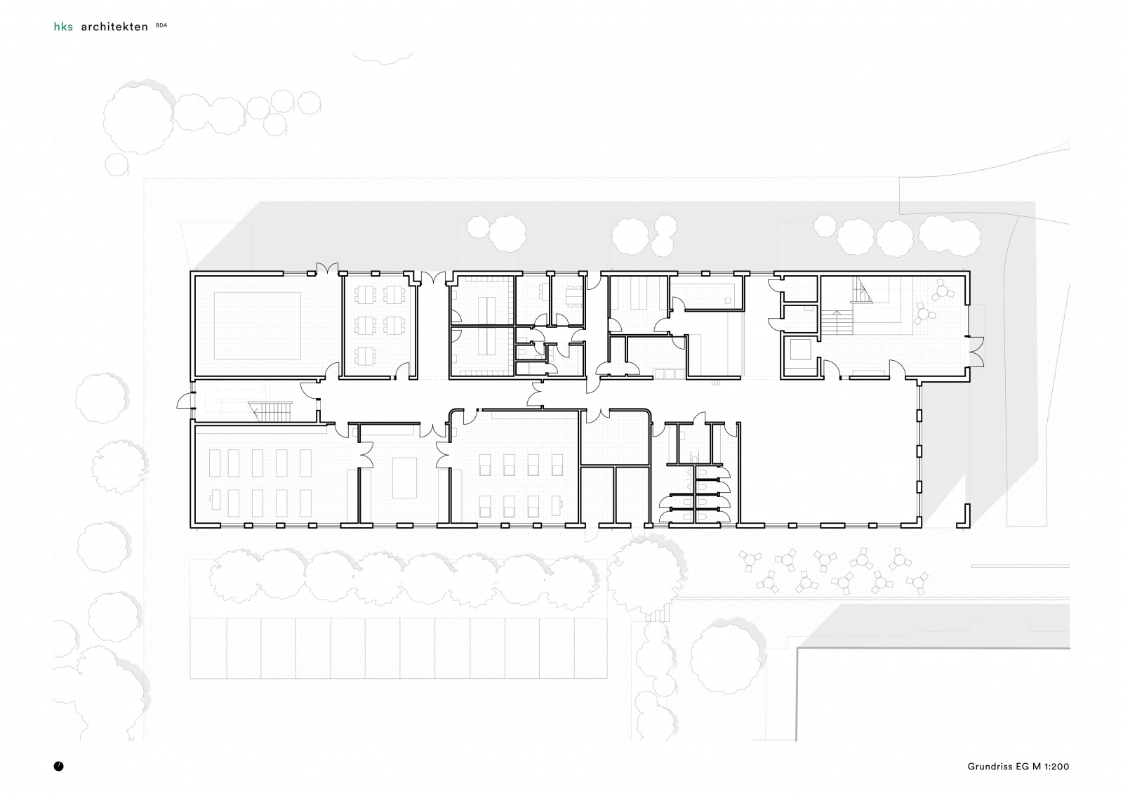
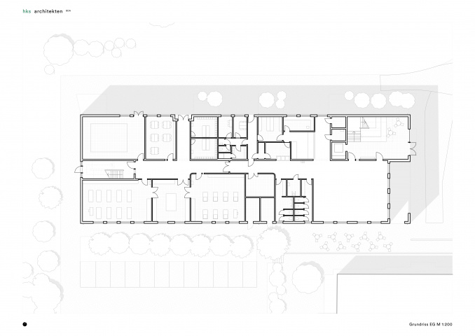
Grundriss Erdgeschoss, Bild: hks architekten BDA
Tag der Architektur 2026
Samstag, 27.06.2026 – Führungen 13:30-14:30, 15:00-16:00 (Treffpunkt: Haupteingang Erweiterungsbau), Gebäude kann nur im Rahmen der Führungen besichtigt werden
Projektbeschreibung
Im Februar 2025 wurde nach einer Bauzeit von nur 21 Monaten der Erweiterungsbau am Berufsschulzentrum in Sondershausen im Thüringer Kyffhäuserkreis fertiggestellt und in Betrieb genommen. Ziel des Entwurfsansatzes war es, durch Hinzufügen eines nachhaltigen “Bausteins” ein funktionales und schlüssiges Gesamtensemble zu schaffen, das sich in dem industriell geprägten städtebaulichen Umfeld kräftig, selbstbewusst und eigenständig behauptet.
Der neue, dreigeschossige Baukörper wurde als Hybridkonstruktion aus Brettsperrholzelementen und weitgespannten Betonfertigteil-Decken montiert. Insgesamt bleibt das Gebäude innen wie außen eher „rauer Kerl“ als „feine Dame“ und wird so den Anforderungen des Schulbetriebes über lange Zeit gewachsen bleiben.
Projektdaten
Adresse
Salzstraße 16
99706 Sondershausen
Planungsbüros
hks architekten GmbH, Erfurt
plandrei Landschaftsarchitektur GmbH, Erfurt
Bauherr
Landratsamt Kyffhäuserkreis
Fertigstellung
Dezember 2024
Nutzfläche
2.109 m2
An dieser Stelle wird eine Google-Maps-Karte angezeigt, wenn Sie das Speichern der entsprechenden Cookies erlaubt haben. Dies können Sie über die Privatsphäre-Einstellungen jederzeit tun.
Zugeordnete Schlagworte und Sammlungen
Weitere Projekte des gleichen Büros (20)
-
Wohnen am Kilianipark
Erfurt
Ulan-Bator-Straße, 99091 Erfurt OT Gispersleben
Tag der Architektur 2026
Sonntag, 28.06.2026 – geöffnet 11:00-12:00, Führungen 11:00, nur Außenbesichtigung
-
Forschungsgebäude "MCJ Microverse Center Jena"
Jena
Rosalind-Franklin-Str. 5, 07745 Jena
Tag der Architektur 2026
Sonntag, 28.06.2026 – Führungen 14:30-15:30, 15:30-16:30 (Treffpunkt: Haupteingang Winzerlaer Str.), Gebäude kann nur im Rahmen der Führungen besichtigt werden
-
Sanierung Heizwerk Erfurt
Erfurt
Maximilian-Welsch-Str. 6, 99084 Erfurt
hks architekten GmbH, Erfurt
plandrei Landschaftsarchitektur GmbH, Erfurt | lichtraum, Weimar
-
-
-
-
Neubau Fertigungsstandort mit Produktion, Lager-, Büro- und Sozialbereich SimonsVoss Technologies AG
Droyßig
Lindenstraße 6, 06722 Droyßig
-
Wasserkraftwerk Westringkaskade Erfurt
Erfurt
Straße der Nationen, 99091 Erfurt
hks architekten GmbH, Erfurt
Form & Fokus, Leipzig | lichtraum, Weimar
-
-
-
Neubau Unterkunftsgebäude für das Aus- und Fortbildungszentrum des Bildungswerk BAU, Erfurt
Erfurt
Apoldaer Straße 3, 99081 Erfurt
-
Neugestaltung Vorplatz Verwaltungshochhaus Bachstraße
Erfurt
Johann-Sebastian-Bach-Straße, 99096 Erfurt
-
Neubau Wohnbebauung Zeppelinstraße in Erfurt
Erfurt
Zeppelinstraße 12-13, 99096 Erfurt OT Daberstedt
-
Neues Laborgebäude des Leibniz-Instituts für Altersforschung / Fritz-Lipmann-Institut e.V. (FLI)
Jena
Beutenbergstraße 11, 07745 Jena
hks architekten GmbH, Erfurt
Entwurf und Planung: archiscape – Architekten und Landschaftsarchitekten, Michael Mackenrodt, Berlin | plandrei Landschaftsarchitektur GmbH, Erfurt -
Kaisersaal Erfurt - Gourmetrestaurant 'Clara'
Erfurt
Futterstraße 15/16, 99084 Erfurt OT Altstadt
hks architekten GmbH, Erfurt
lichtraum, Weimar -
IHK Erfurt Ausbau Dachgeschoss
Erfurt
Arnstädter Straße 34, 99084 Erfurt
hks architekten GmbH, Erfurt
Dipl.-Des. (FH) Albrecht von Kirchbach Freier Innenarchitekt, Erfurt -
-
Internat der Salzmannschule Schnepfenthal
Waltershausen
OT Schnepfenthal, Robert-Koch-Straße 1a, 99880 Waltershausen
-
-
Thüringer Kompetenzzentrum für Hochtechnologie und Solarindustrie
Erfurt
Hermann-Hollerith-Straße 3, 99099 Erfurt
Letzte Aktualisierung dieser Seite am: 15.04.2026. Alle Angaben auf dieser Seite werden durch das Büro hks architekten GmbH, Erfurt auf freiwilliger Basis verwaltet. Das Büro ist für den Inhalt dieser Seite selbst verantwortlich. Die Angaben werden von der Architektenkammer Thüringen nicht geprüft.