Modernisierung und Erweiterung Johanneskindergarten · Erfurt
9 Projektbilder
-
Hof, Bild: Matthias Funken -
Bestand vor der Modernisierung, Bild: Matthias Funken -
Verbindergang, Bild: Matthias Funken -
Verbindergang, Bild: Matthias Funken -
Bad, Bild: Matthias Funken -
Bad im Untergeschoss, Bild: Matthias Funken -
Verbindergang02, Bild: Matthias Funken -
Hof, Bild: Matthias Funken -
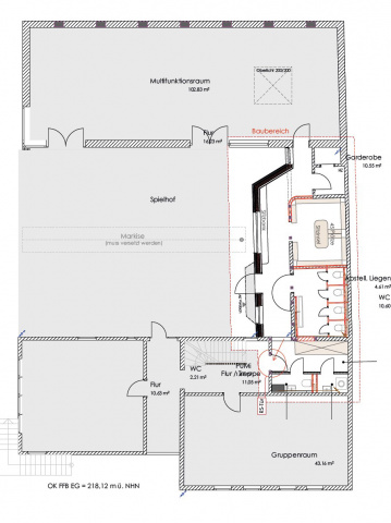
Grundriss Erdgeschoss, Bild: Matthias Funken
Projektbeschreibung
Bei der Sanierung sollten sowohl räumliche Problematiken (Enge, Belichtung, Belüftung etc.) als auch technische Missstände von Bauteilen (Stolperfallen an den Treppenstufen, veralterte ausgediente Bauteile, etc.) behoben werden, um den Sanierungsstau der vergangenen 20 Jahre in den betreffenden Bereichen aufzuheben.
Der 1. Bauabschnitt umfasste die Entkernung und Sanierung des Untergeschosses und den damit verbundenen Tausch von Kinderbad und Küche.
Der 2. Bauabschnitt umfasste die Entkernung des erdgeschossigen Verbindungsbaukörpers zwischen Altbau und dem hofseitigen Anbau aus 2006. Nach der Entkernung wurde ein neuer Verbindungsbaukörper in nachhaltiger Holzbauweise vorgebaut und alles auf den neusten Stand der Technik ausgebaut. Im Sanierungs-/Ausbaubereich wurde ein neues Kinderbad, eine Gästetoilette, ein Waschmaschinenraum, eine zentrale Garderobe und ein großzügiger Spielflurgang mit Sitzfenster zum Hof erstellt. Alle Bereiche erhielten Schallschutzdecken und eine kindgerechte Ausstattung.
Projektdaten
Adresse
Dornrain 12
99094 Erfurt
Planungsbüro
Bauherr
Evangelischer Kirchgemeindeverband Hochheim-Schmira
Fertigstellung
Februar 2023
Nutzfläche
350 m2
An dieser Stelle wird eine Google-Maps-Karte angezeigt, wenn Sie das Speichern der entsprechenden Cookies erlaubt haben. Dies können Sie über die Privatsphäre-Einstellungen jederzeit tun.
Zugeordnete Schlagworte und Sammlungen
Weitere Projekte des gleichen Büros (24)
-
-
-
-
-
-
-
-
-
-
-
Energetische Sanierung Kita 86 Pusteblume
Erfurt
Hans-Grundig-Str. 27, 99096 Erfurt OT Daberstedt
funken architekten, Erfurt
Ansgar Heinze Freier Garten- und Landschaftsarchitekt, Erfurt -
-
-
-
Letzte Aktualisierung dieser Seite am: 23.05.2024. Alle Angaben auf dieser Seite werden durch das Büro funken architekten, Erfurt auf freiwilliger Basis verwaltet. Das Büro ist für den Inhalt dieser Seite selbst verantwortlich. Die Angaben werden von der Architektenkammer Thüringen nicht geprüft.