Wohnhaus KIS · Arnstadt
7 Projektbilder
Projektbeschreibung
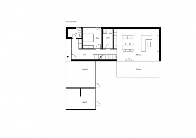
Am Ortsrand von Arnstadt mit freiem Blick auf die Wachsenburg wurde ein modernes Einfamilienhaus in Holzbauweise errichtet.
Das Haus bildet das Entree`zu einem neuen Wohngebiet. Der rechteckige Wohnhausblock mit einem angelagerten Carport/Abstellraum-Baukörper grenzt den großzügigen Garten zum anliegenden Straßenraum klar ab. Auch die eingeschnittenen Öffnungen unterscheiden zwischen Intern und Extern.
Das Gebäude verfügt über eine Wärmepumpe und eine Lüftungsanlage, so dass kombiniert mit einer sehr gut gedämmten Gebäudehülle der Energieeffizienzhaus 55-Standard erreicht wurde.
Projektdaten
Adresse
Wachsenburgblick 1
99310 Arnstadt
Planungsbüro
Bauherr
privat
Fertigstellung
Juli 2013
Nutzfläche
160 m2
An dieser Stelle wird eine Google-Maps-Karte angezeigt, wenn Sie das Speichern der entsprechenden Cookies erlaubt haben. Dies können Sie über die Privatsphäre-Einstellungen jederzeit tun.
Zugeordnete Schlagworte und Sammlungen
Weitere Projekte des gleichen Büros (24)
-
-
-
-
-
-
-
-
-
-
-
-
Energetische Sanierung Kita 86 Pusteblume
Erfurt
Hans-Grundig-Str. 27, 99096 Erfurt OT Daberstedt
funken architekten, Erfurt
Ansgar Heinze Freier Garten- und Landschaftsarchitekt, Erfurt -
-
-
-
Letzte Aktualisierung dieser Seite am: 03.12.2020. Alle Angaben auf dieser Seite werden durch das Büro funken architekten, Erfurt auf freiwilliger Basis verwaltet. Das Büro ist für den Inhalt dieser Seite selbst verantwortlich. Die Angaben werden von der Architektenkammer Thüringen nicht geprüft.