Neugestaltung Friedhof Rudisleben · Arnstadt
5 Projektbilder
Projektbeschreibung
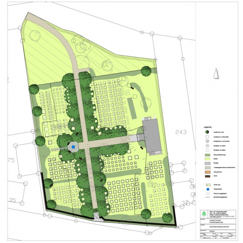
Die Planungen zur Umgestaltung des Friedhofes in Rudisleben basieren auf den Entwürfen des Landschaftsarchitekten Frank Möbius (1943-2008) aus dem Jahr 2000. Die Umsetzung von Friedhofsentwicklungsplanungen bedarf wegen der langen Liegezeiten der Gräber oftmals mehrere Jahrzehnte. Erst ab dem Jahr 2017 konnte die Umsetzung schrittweise beginnen. Neben der Neugestaltung von Grabbelegungsflächen mit höhenbündig in der Rasenfläche verlegten Einfassungen wurde der Hauptweg neu gestaltet und ein Brunnenplatz zentral im Friedhof errichtet. Gleichzeitig wurde die Trauerhalle grundhaft saniert und der Vorplatz mit Natursteinpflaster versehen. Der Friedhof wurde mit einer pflegeleichten Strauch- und Staudenmischpflanzung eingesäumt.
Projektdaten
Adresse
Schulplan 12b
99310 Arnstadt OT Rudisleben
Planungsbüros
Büro für Freiraumplanung Möbius, Erfurt
Innenarchitektur + Design, Albrecht von Kirchbach Freier Innenarchitekt, Erfurt
Bauherr
Stadt Arnstadt
Fertigstellung
Februar 2020
An dieser Stelle wird eine Google-Maps-Karte angezeigt, wenn Sie das Speichern der entsprechenden Cookies erlaubt haben. Dies können Sie über die Privatsphäre-Einstellungen jederzeit tun.
Zugeordnete Schlagworte und Sammlungen
Weitere Projekte des gleichen Büros (13)
-
Kriegsgräberstätte Suhl-Dietzhausen
Suhl
Am Rain, 98530 Suhl OT Dietzhausen
Büro für Freiraumplanung Möbius, Erfurt
-
Neugestaltung Friedhof Steinbach-Hallenberg
Steinbach-Hallenberg
Wolffstraße, 98587 Steinbach-Hallenberg
Büro für Freiraumplanung Möbius, Erfurt
-
KZ-Häftlingsfriedhof auf dem Baderberg in Berga/Elster
Berga/Elster
Baderberg, 07980 Berga/Elster
Büro für Freiraumplanung Möbius, Erfurt
-
Gräberfeld für Urnenbeisetzungen im Friedhof Arnstadt
Arnstadt
Am Friedhof 2, 99310 Arnstadt
Büro für Freiraumplanung Möbius, Erfurt
-
Neugestaltung Friedhof Espenfeld
Arnstadt
Espenfeld 3, 99310 Arnstadt Arnstadt OT Espenfeld
Büro für Freiraumplanung Möbius, Erfurt
-
Neugestaltung Gräberfeld 8 Friedhof Arnstadt
Arnstadt
Am Friedhof 2, 99310 Arnstadt
Büro für Freiraumplanung Möbius, Erfurt
-
Neugestaltung Friedhof Dietlas
Krayenberggemeinde
Berger Weg, 36460 Krayenberggemeinde OT Dietlas
Büro für Freiraumplanung Möbius, Erfurt
-
Erweiterung Dorffriedhof Dosdorf
Arnstadt
Dosdorf, 99310 Arnstadt OT Dosdorf
Büro für Freiraumplanung Möbius, Erfurt
-
Neugestaltung Zugang Friedhofsverwaltung Arnstadt
Arnstadt
Am Friedhof 2, 99310 Arnstadt
Büro für Freiraumplanung Möbius, Erfurt
-
Urnengräberfelder Friedhof Arnstadt
Arnstadt
Am Friedhof 2a, 99310 Arnstadt
Büro für Freiraumplanung Möbius, Erfurt
-
Dorfbegrünung mit Stauden in Kamsdorf
Kamsdorf
Kaulsdorfer Straße 5, 07334 Kamsdorf
Büro für Freiraumplanung Möbius, Erfurt
-
Umgestaltung Friedhof Farnroda
Wutha-Farnroda
Rehberg, 99848 Wutha-Farnroda OT Farnroda
Büro für Freiraumplanung Möbius, Erfurt
-
Umgestaltung Friedhof Dorndorf/Rhön
Dorndorf
Bahnhofstraße, 36460 Dorndorf
Büro für Freiraumplanung Möbius, Erfurt
Letzte Aktualisierung dieser Seite am: 04.05.2021. Alle Angaben auf dieser Seite werden durch das Büro Büro für Freiraumplanung Möbius, Erfurt auf freiwilliger Basis verwaltet. Das Büro ist für den Inhalt dieser Seite selbst verantwortlich. Die Angaben werden von der Architektenkammer Thüringen nicht geprüft.