Umgestaltung Friedhof Dorndorf/Rhön · Dorndorf
3 Projektbilder
Projektbeschreibung
Umgestaltung Friedhof Dorndorf/Rhön
Die Umgestaltung von Friedhöfen erfordert aufgrund der Ruhezeiten und Nutzungsrechte an Gräbern langfristige Konzepte und deren abschnittsweise Realisierung über längere Zeiträume oder mehrere Generationen.
Mit der Umsetzung des Entwicklungskonzeptes für den Friedhof der Gemeinde Dorndorf konnte bereits im ersten Bauabschnitt ein Großteil der Fläche in die Umgestaltung einbezogen werden, so dass der Friedhof sein Erscheinungsbild in kürzester Zeit völlig verändert hat.
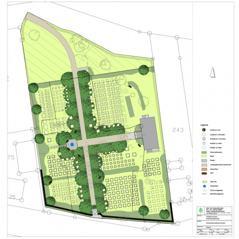
Der Entwurf sieht Baumpflanzungen mit einer mittelkronigen Linde entlang der Achse des Hauptweges vor. Diese stehen in einem Rasenstreifen beidseitig des Weges. Somit werden Beschädigungen der Wurzelanläufe durch Überfahren und Schäden am Weg zukünftig vermieden. Die vorhandenen Kastanien und Fichten wurden gefällt. Sie wiesen aufgrund zu geringen Pflanzabstandes Kronenschäden und erhebliche Schäden am Stammfuß (Überfahrschäden) auf. Im nördlichen Bereich bleiben eine Kastanie und die Birken erhalten.
Der Eingang von der B62 wurde neu gestaltet. Die Benutzung des Eingangstores war mit erheblichen Gefahren verbunden, da dieses über die Treppenanlage schwenkte. Die neue Treppenanlage beginnt erst ca. 5 m hinter dem Bürgersteig. Dadurch entsteht eine großzügigere Eingangssituation. Zur Überwindung des Höhenunterschiedes wurden
5 Blockstufen aus Muschelkalk gesetzt. Der Zugangsbereich von der Straße wurde bis zum neuen Tor in dem vorhandenen Betonpflaster und ab dem Friedhofstor mit Muschelkalkpflaster in Reihen ausgeführt. Die Hauptwege wurden als befahrbare Wege in wassergebundener Bauweise mit beidseitigem Gefälle ausgebildet und entwässern in die Rasenflächen. Vor der Trauerhalle wird ein ca. 3,50 x 3,50 m breiter Wegebereich mit Natursteinpflaster gepflastert. Ebenso der Bereich für den Brunnenplatz, der sich gegenüber der Trauerhalle befindet.
In der Achse der Trauerhalle wurde am Ende des Weges ein Natursteinbrunnen errichtet. Diesem sind Sitzplätze zugeordnet. Durch Bepflanzung erfolgt eine räumliche Trennung von den Gräberfeldern. Eine Geländemodulation schafft ebene Belegungsflächen. Außerhalb des Hauptweges werden alle Flächen mit Rasen begrünt und die Gräberfelder mit betretbaren Rasenflächen ausgestattet. Im Vergleich zu den vorhandenen bekiesten Flächen ergibt sich nicht nur ein höherer Grünanteil, der sich positiv auf Trauernde auswirkt, sondern auch eine günstigere Bewirtschaftung der Flächen. Es werden zwei Gräberfelder mit zusätzlichen Gestaltungsvorschriften eingerichtet. In diesen werden vom Planer entworfene Einfassrahmen höhenbündig im Rasen verlegt. Die Gräberfelder werden durch freiwachsende Strauchpflanzungen begrenzt. Im Bereich zur Straße wurde ein Erdwall angefüllt. Dieser wurde mit einer Hainbuchenhecke bepflanzt.
Projektdaten
Adresse
Bahnhofstraße
36460 Dorndorf
Planungsbüro
Büro für Freiraumplanung Möbius, Erfurt
Bauherr
Gemeindeverwaltung Dorndorf
Fertigstellung
2010
An dieser Stelle wird eine Google-Maps-Karte angezeigt, wenn Sie das Speichern der entsprechenden Cookies erlaubt haben. Dies können Sie über die Privatsphäre-Einstellungen jederzeit tun.
Zugeordnete Schlagworte und Sammlungen
Weitere Projekte des gleichen Büros (13)
-
Kriegsgräberstätte Suhl-Dietzhausen
Suhl
Am Rain, 98530 Suhl OT Dietzhausen
Büro für Freiraumplanung Möbius, Erfurt
-
Neugestaltung Friedhof Steinbach-Hallenberg
Steinbach-Hallenberg
Wolffstraße, 98587 Steinbach-Hallenberg
Büro für Freiraumplanung Möbius, Erfurt
-
KZ-Häftlingsfriedhof auf dem Baderberg in Berga/Elster
Berga/Elster
Baderberg, 07980 Berga/Elster
Büro für Freiraumplanung Möbius, Erfurt
-
Neugestaltung Friedhof Rudisleben
Arnstadt
Schulplan 12b, 99310 Arnstadt OT Rudisleben
Büro für Freiraumplanung Möbius, Erfurt
Innenarchitektur + Design, Albrecht von Kirchbach Freier Innenarchitekt, Erfurt -
Gräberfeld für Urnenbeisetzungen im Friedhof Arnstadt
Arnstadt
Am Friedhof 2, 99310 Arnstadt
Büro für Freiraumplanung Möbius, Erfurt
-
Neugestaltung Friedhof Espenfeld
Arnstadt
Espenfeld 3, 99310 Arnstadt Arnstadt OT Espenfeld
Büro für Freiraumplanung Möbius, Erfurt
-
Neugestaltung Gräberfeld 8 Friedhof Arnstadt
Arnstadt
Am Friedhof 2, 99310 Arnstadt
Büro für Freiraumplanung Möbius, Erfurt
-
Neugestaltung Friedhof Dietlas
Krayenberggemeinde
Berger Weg, 36460 Krayenberggemeinde OT Dietlas
Büro für Freiraumplanung Möbius, Erfurt
-
Erweiterung Dorffriedhof Dosdorf
Arnstadt
Dosdorf, 99310 Arnstadt OT Dosdorf
Büro für Freiraumplanung Möbius, Erfurt
-
Neugestaltung Zugang Friedhofsverwaltung Arnstadt
Arnstadt
Am Friedhof 2, 99310 Arnstadt
Büro für Freiraumplanung Möbius, Erfurt
-
Urnengräberfelder Friedhof Arnstadt
Arnstadt
Am Friedhof 2a, 99310 Arnstadt
Büro für Freiraumplanung Möbius, Erfurt
-
Dorfbegrünung mit Stauden in Kamsdorf
Kamsdorf
Kaulsdorfer Straße 5, 07334 Kamsdorf
Büro für Freiraumplanung Möbius, Erfurt
-
Umgestaltung Friedhof Farnroda
Wutha-Farnroda
Rehberg, 99848 Wutha-Farnroda OT Farnroda
Büro für Freiraumplanung Möbius, Erfurt
Letzte Aktualisierung dieser Seite am: 10.11.2011. Alle Angaben auf dieser Seite werden durch das Büro Büro für Freiraumplanung Möbius, Erfurt auf freiwilliger Basis verwaltet. Das Büro ist für den Inhalt dieser Seite selbst verantwortlich. Die Angaben werden von der Architektenkammer Thüringen nicht geprüft.