Wohnen im Klassenzimmer - Umbau der Albert-Schweitzer-Mittelschule zu einer barrierefreien Wohnanlage · Chemnitz
Projektscheune Planungsgesellschaft mbH, Schleusingen OT Sankt Kilian
5 Projektbilder
Projektbeschreibung
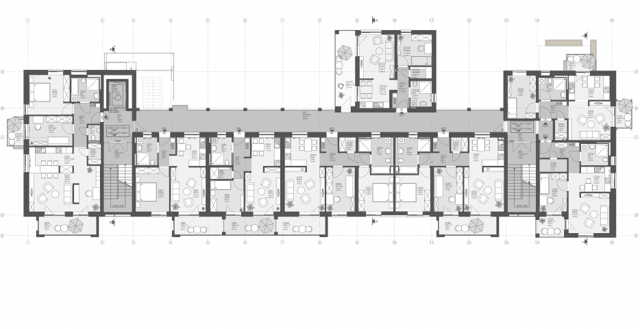
Das vormalige Schulgebäude erfuhr eine Umnutzung zu Wohnzwecken. Dazu wurden in die Abfolge der ehemaligen Klassenzimmer Wohnungen implementiert. Um die Qualität der entstehenden Wohnungen aufzuwerten,erfolgte an Stelle der bestehenden Mittelgangerschließung die Anordnung eines offenen Laubengangs. Die sich im Bestand oberhalb des vormaligen Mittelgangs befindenden Raumstrukturen wurden abgebrochen. Am Laubengang erfolgte, leicht versetzt zur Gebäudemitte, eine Gebäudeerweiterung in Form eines dreigeschossigen, massiv ausgeführten Neubaukörpers. Eine weitere Erweiterung wurde am rechten Gebäudegiebel in nordöstlicher Richtung vorgesehen.
Insgesamt entstanden mit dem Umbau des vormaligen Schulgebäudes 30 Wohneinheiten. Diese sind als barrierefreie Zwei- bzw. Dreiraumwohnungen ausgeführt worden. Küchen und Bäder der Wohneinheiten sind zum Laubengang orientiert, Wohn- und Schlafräume wurden auf der, dem Laubengang abgewandten Seite, angeordnet. Alle Wohnungen erhielten ein oder mehrere Balkone bzw. Loggien, die in der Hauptsache nach Südosten orientiert sind. Im Erdgeschoss findet man in Ergänzung zu den allgemeinen Wohnfunktionen ein Servicebüro sowie ein kleines Gästezimmer mit eigenem Bad vor.
Die beiden bestehenden Treppenhäuser konnten unverändert beibehalten werden. Dem linken, südlichen Treppenhaus wurde eine Aufzugsanlage zugeordnet, die eine barrierefreie vertikale Erschließung aller Geschosse ermöglicht. Die Aufzugsanlage weist hinreichend große Kabinenabmaße auf, um auch den Transport einer Krankentrage zu ermöglichen. Infolge der Hochparterrelage des Erdgeschosses, welches sich ca. 1,70 m über das Geländeniveau erhebt, wurde die Aufzugsanlage als „Durchlader“ konzipiert und erhielt eine weitere Haltestelle im Bereich des Gebäudeeingangs. Der ehemalige Hauptzugang zur Schule wurde vollständig zurück gebaut und als neues Element in Richtung Südwesten ausformuliert. Der Gebäudeeingang beinhaltet eine neue, vollständig überdachte Eingangstreppe, die bis zum Laubengang geführt wird.
Im Sockelgeschoss (vormals Kellergeschoss) entstand ein größerer Gemeinschaftsraum mit zugehöriger Küche und Toilettenräumen. Weiterhin sind ein Fitnessraum und ein Serviceraum (Fußpflege, Physiotherapie, Friseur) als ergänzende Funktionen im Vorhaben angeordnet worden. Im Nord- bzw. Südgiebel befinden sich die Mieterkeller. Weitere Lagerräume, haustechnische Betriebsräume, ein Trockenraum, ein Fahrradkeller, ein Rollstuhlaufladeraum etc. runden das Raumangebot im Sockelgeschoss ab. Vor dem Gemeinschaftsraum wurde im Außenbereich das Gelände abgegraben und an dieser Stelle eine großzügige Freiterrasse angeordnet.
Projektdaten
Adresse
Alfred-Neubert-Straße 21
09123 Chemnitz OT Markersdorf Süd
Planungsbüro
Projektscheune Planungsgesellschaft mbH, Schleusingen OT Sankt Kilian
Bauherr
Wohnungsgenossenschaft „Einheit“ eG Chemnitz
Fertigstellung
Mai 2014
Nutzfläche
2472 m2
An dieser Stelle wird eine Google-Maps-Karte angezeigt, wenn Sie das Speichern der entsprechenden Cookies erlaubt haben. Dies können Sie über die Privatsphäre-Einstellungen jederzeit tun.
Zugeordnete Schlagworte und Sammlungen
Weitere Projekte des gleichen Büros (32)
-
Leben im Zentrum von Gotha – Transformation eines Wohnquartiers
Gotha
Berg 1-13 und 2-4, Heinoldsgasse 2-12 und 1-13, 99867 Gotha
Projektscheune Planungsgesellschaft mbH, Schleusingen OT Sankt Kilian
-
Umbau, Sanierung und Erweiterung eines Schulgebäudes zu einer Regelschule
Hildburghausen
Waldstraße 11a, 98646 Hildburghausen
Projektscheune Planungsgesellschaft mbH, Schleusingen OT Sankt Kilian
-
Neues Wohnen in Triptis – ein Projekt im ländlichen Raum
Triptis
Schillerstraße 17a, 17b und 19, 07819 Triptis
Projektscheune Planungsgesellschaft mbH, Schleusingen OT Sankt Kilian
-
Umbau und Erweiterung historisches Amtshaus Gotha
Gotha
Augustinerstraße 13-17, 99867 Gotha
Projektscheune Planungsgesellschaft mbH, Schleusingen OT Sankt Kilian
-
PÖßNECK OST 3.1 – Komplexsanierung eines Plattenbauwohngebäudes
Pößneck
Rosa-Luxemburg-Str. 21-31, 07381 Pößneck
Projektscheune Planungsgesellschaft mbH, Schleusingen OT Sankt Kilian
-
Sanierung und Umbau eines vormaligen Postgebäudes zu einer Bankfiliale
Ilmenau
Poststraße 2, 98693 Ilmenau
Projektscheune Planungsgesellschaft mbH, Schleusingen OT Sankt Kilian
-
Umnutzung Hotel "Stadt Wien"
Zella-Mehlis
Hauptstraße 1, 98544 Zella-Mehlis
Projektscheune Planungsgesellschaft mbH, Schleusingen OT Sankt Kilian
-
Neubau von zwei Wohn- und Geschäftshäusern
Zella-Mehlis
Hauptstraße 56 und 58, 98544 Zella-Mehlis
Projektscheune Planungsgesellschaft mbH, Schleusingen OT Sankt Kilian
-
Wohnen im Park Kölleda
Kölleda
Feistkornstraße 9a-9f, 99625 Kölleda
Projektscheune Planungsgesellschaft mbH, Schleusingen OT Sankt Kilian
-
Neubau von zwei Mehrfamilienwohnhäusern in Suhl
Suhl
Windmühlenweg 3 und 5, 98527 Suhl
Projektscheune Planungsgesellschaft mbH, Schleusingen OT Sankt Kilian
-
Neugestaltung Plattenbauquartier in Gotha
Gotha
Blumenbachstraße 10-16 / Fritzelsgasse 2-6, 99867 Gotha
Projektscheune Planungsgesellschaft mbH, Schleusingen OT Sankt Kilian
-
Autohaus Ehrhardt AG
Suhl
Auenstraße 3-5, 98529 Suhl
Projektscheune Planungsgesellschaft mbH, Schleusingen OT Sankt Kilian
-
Umbau Beschussanstalt zum Stadtmuseum
Zella-Mehlis
Zella-Mehlis
Projektscheune Planungsgesellschaft mbH, Schleusingen OT Sankt Kilian
-
Neubau Seniorenwohnanlage "AWOsi" in Arnstadt
Arnstadt
Lohweg 13, 99310 Arnstadt
Projektscheune Planungsgesellschaft mbH, Schleusingen OT Sankt Kilian
-
Neubau eines Praxiszentrums für Energieeffizienz und energetische Gebäudesanierung
Rohr
Kloster 1, 98530 Rohr OT Kloster
Projektscheune Planungsgesellschaft mbH, Schleusingen OT Sankt Kilian
-
Wohnen im Klassenzimmer -Nachnutzung der vormaligen Schule Heckenrosenweg 2 in Erfurt zu einer barrierefreien Wohnanlage
Erfurt
Heckenrosenweg 2, 99097 Erfurt OT Wiesenhügel
Projektscheune Planungsgesellschaft mbH, Schleusingen OT Sankt Kilian
-
Wohnen mit Service - Umbau der vormaligen Grundschule Goldlauter zu einer barrierefreien Wohnanlage
Suhl
Zellaer Straße 50, 98528 Suhl OT Goldlauter
Projektscheune Planungsgesellschaft mbH, Schleusingen OT Sankt Kilian
-
Wohn- und Pflegezentrum Marksuhl
Marksuhl
Ettenhäuser Weg , 99819 Marksuhl
Projektscheune Planungsgesellschaft mbH, Schleusingen OT Sankt Kilian
-
Sanierung "Pölbitzer Karree"
Zwickau
Franz - Mehring - Straße 40-52, Zwickau
Projektscheune Planungsgesellschaft mbH, Schleusingen OT Sankt Kilian
-
Sanierung eines Wohn- und Geschäftshauses
Chemnitz
Hoffmannstraße 58-60, Chemnitz
Projektscheune Planungsgesellschaft mbH, Schleusingen OT Sankt Kilian
-
Sanierung "Villencolonie Weißenborn"
Zwickau
Crimmitschauer Str. 108, Zwickau
Projektscheune Planungsgesellschaft mbH, Schleusingen OT Sankt Kilian
-
Haus für ältere Bürger Trusetal
Brotterode-Trusetal
Rathausstraße 40, 98596 Brotterode-Trusetal OT Trusetal
Projektscheune Planungsgesellschaft mbH, Schleusingen OT Sankt Kilian
-
Umbau und Modernisierung Wohngebäude Chemnitz
Chemnitz
Annaberger Straße 171 d-f, 09120 Chemnitz OT Altchemnitz
Projektscheune Planungsgesellschaft mbH, Schleusingen OT Sankt Kilian
-
Pflegezentrum Zella-Mehlis
Zella-Mehlis
Ernst-Haeckel-Straße 1, 98544 Zella-Mehlis
Projektscheune Planungsgesellschaft mbH, Schleusingen OT Sankt Kilian
-
Umbau und Modernisierung Pflegeheim Döllberg
Suhl
Hufelandstraße 11, 98527 Suhl
Projektscheune Planungsgesellschaft mbH, Schleusingen OT Sankt Kilian
-
Grundschule Themar
Themar
Ludwigstraße 19, 98660 Themar
Projektscheune Planungsgesellschaft mbH, Schleusingen OT Sankt Kilian
-
Immobiliencenter Meiningen
Meiningen
Am Markt 5, 98617 Meiningen
Projektscheune Planungsgesellschaft mbH, Schleusingen OT Sankt Kilian
-
Wohnbau Aue 2.0 - Neu- und Ersatzbebauung Leonhard-Frank-Straße 108-114
Suhl
Leonhard-Frank-Straße 108-114, 98529 Suhl
Projektscheune Planungsgesellschaft mbH, Schleusingen OT Sankt Kilian
-
Pößneck Ost 3.0
Pößneck
Rosa-Luxemburg-Straße 33-43, 07381 Pößneck
Projektscheune Planungsgesellschaft mbH, Schleusingen OT Sankt Kilian
-
Wohnen im Pfarrgarten Kindelbrück
Kindelbrück
Puschkinplatz 4-5 , 99638 Kindelbrück
Projektscheune Planungsgesellschaft mbH, Schleusingen OT Sankt Kilian
Letzte Aktualisierung dieser Seite am: 17.05.2019. Alle Angaben auf dieser Seite werden durch das Büro Projektscheune Planungsgesellschaft mbH, Schleusingen OT Sankt Kilian auf freiwilliger Basis verwaltet. Das Büro ist für den Inhalt dieser Seite selbst verantwortlich. Die Angaben werden von der Architektenkammer Thüringen nicht geprüft.