Horngasse 3/4 · Erfurt
10 Projektbilder
-
Nordwestansicht, Bild: Tom Kanngießer -
Biergarten, Bild: Tom Kanngießer -
Nordfassade, Bild: Tom Kanngießer -
Westfassade, Bild: Tom Kanngießer -
Südfassade, Bild: Tom Kanngießer -
Ostfassade, Bild: Tom Kanngießer -
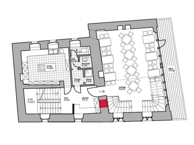
Erdgeschoss, Bild: Tom Kanngießer -
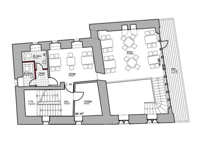
1. Obergeschoss, Bild: Tom Kanngießer -
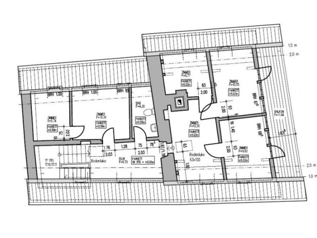
2. Obergeschoss, Bild: Tom Kanngießer -
Dachgeschoss, Bild: Tom Kanngießer
Projektbeschreibung
Die beiden aneinander gebauten Häuser befinden sich im historischen Stadtzentrum von Erfurt, unmittelbar am Breitstrom mit direkter Blickbeziehung auf die nördliche Häuserzeile der Krämerbrücke.
Das Quartier hinter der Krämerbrücke war ursprünglich dicht bebaut. Jedoch ist die einstige, mittelalterliche Struktur nicht mehr erkennbar. Heute bilden die beiden Gebäude einen einzeln stehenden, denkmalgeschützten Gebäudekomplex. Das Haus Horngasse 3, „Haus zur güldenen Distel“, stammt vermutlich aus dem 13. Jahrhundert. Das nebenstehende Renaissanceportal stellt noch einen Rest des ursprünglichen Nachbargebäudes dar. Das Gebäude Horngasse 4, „Haus zur Steinecke“, wurde vermutlich Anfang des 14. Jahrhunderts errichtet. Beide Häuser erfuhren im 20. Jahrhundert mehrfach Umbauten und Renovierungen.
Bis Anfang des 19. Jahrhunderts wurde der Gebäudekomplex als Hospital und Studentenlazarett, bis zum ausgehenden 20. Jahrhundert als Bürogebäude vom Land Thüringen genutzt. Nach längerem Leerstand wurde das Gebäudeensemble durch die Edith-Haberland-Wagner-Stiftung, einer Gesellschafterin der Augustiner Brauerei München, erworben und zu einem Gasthaus umgebaut. Unser Büro war mit der Entwurfs- und Genehmigungsplanung beauftragt.
Projektdaten
Adresse
Horngasse 3-4
99084 Erfurt
Planungsbüro
kanngießer jauck architekten, Gotha
Fertigstellung
August 2004
An dieser Stelle wird eine Google-Maps-Karte angezeigt, wenn Sie das Speichern der entsprechenden Cookies erlaubt haben. Dies können Sie über die Privatsphäre-Einstellungen jederzeit tun.
Zugeordnete Schlagworte und Sammlungen
Weitere Projekte des gleichen Büros (29)
-
HAUS RÖ
Waltershausen
Hirtsgasse 12, 99880 Waltershausen OT Schnepfenthal
kanngießer jauck architekten, Gotha
-
Energetische Fassadensanierung Berliner Straße 54-142
Erfurt
Berliner Straße 54-142, 99089 Erfurt OT Marbach
kanngießer jauck architekten, Gotha
-
Sanierung Einzeldenkmal Gustav-Freytag-Haus in Gotha
Gotha
Weimarer Straße 145, 99867 Gotha OT Siebleben
kanngießer jauck architekten, Gotha
-
Umgestaltung Conciergeanlage Julius-Leber-Ring 3-5
Erfurt
Julius-Leber-Ring 3-5, 99089 Erfurt
kanngießer jauck architekten, Gotha
-
Energetische Fassadensanierung Julius-Leber_Ring 3-5
Erfurt
Julius-Leber_Ring 3-5, 99089 Erfurt
kanngießer jauck architekten, Gotha
-
HAUS KIS
Erfurt
Brühler Herrenberg 51, 99092 Erfurt
kanngießer jauck architekten, Gotha
plandrei Landschaftsarchitektur GmbH, Erfurt -
HAUS KOT
Arnstadt
Schlossbergweg 8, 99310 Arnstadt OT Angelhausen-Oberndorf
kanngießer jauck architekten, Gotha
-
Staatl. Regelschule "Conrad Ekhof", Fassadensanierung
Gotha
Eschleber Str. 39, 99867 Gotha
kanngießer jauck architekten, Gotha
Letzte Aktualisierung dieser Seite am: 15.02.2013. Alle Angaben auf dieser Seite werden durch das Büro kanngießer jauck architekten, Gotha auf freiwilliger Basis verwaltet. Das Büro ist für den Inhalt dieser Seite selbst verantwortlich. Die Angaben werden von der Architektenkammer Thüringen nicht geprüft.