KITA Spatzennest · Erfurt
14 Projektbilder
-
Gartenansicht, Bild: Lars Jugel -
Fassadendetail Eingangsseite, Bild: Lars Jugel -
Flur mit Garderobe, Bild: Lars Jugel -
mittleres Bad, Bild: Lars Jugel -
Flur, Bild: Lars Jugel -
Garderobe, Bild: Lars Jugel -
Kinderküche, Bild: Lars Jugel -
Gruppenraum Erdgeschoss, Bild: Lars Jugel -
Kinderwaschraum, Bild: Lars Jugel -
Eingangsseite, Bild: Lars Jugel -
Teilansicht Eingang rechts, Bild: Lars Jugel -
Fassadendetail Gartenansicht, Bild: Lars Jugel -
Gartenansicht 2, Bild: Lars Jugel -
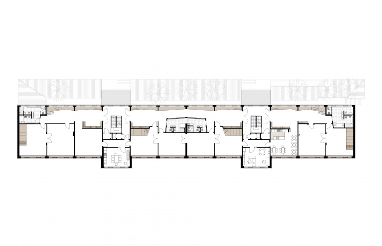
Grundriss Obergeschoss, Bild: Sabine Hauschild
Projektbeschreibung
Die Kindertagesstätte befindet sich im Nord-Westen der Stadt Erfurt, am Rand des Wohngebietes Berliner Platz, in der Talaue der Gera. Das Wohngebiet entstand ab 1978 in Plattenbauweise, einschließlich der Kindertagesstätte.
Das vorhanden Gebäude bestand ursprünglich aus 2 Nutzungseinheiten, die mit der Sanierung zu einer Kinder-Tagesstätte zusammengelegt wurde, für insgesamt 170 Kinder mit einem Kleinkind Bereich.
Die 2 vorhandenen Treppenhäuser sind über einen großzügigen Spielflur, in welchen die Garderoben integriert sind, miteinander verbunden, damit entstehen übersichtliche und klar strukturierte Räume, in denen sich die Kinder gut orientieren und bewegen können.
Der Spielflur liegt an der Süd-Westfassade des Gebäudes, und bietet damit auf der Sonnenseite der Kita einen neuen Aufenthaltsbereich, mit viel Bewegungsfläche.
Diese Erschließung und Raumstruktur korrespondiert mit dem Wunsch des Trägers einer Betreuung nach dem Familienprinzip in Gruppenwohnung, lässt jedoch auch Betreuung in einem offenen Konzept zu, oder die Kombination beider pädagogischen Konzepte.
Die Küche wird neu im Erdgeschoss eingeordnet mit einem separaten Eingang von außen.
Die Erschließung des Erdgeschosses erfolgt barrierefrei, im Erdgeschoss ist ein Mehrzweckraum eingeordnet, der als Kinderrestaurant, Elternsprechstunde und Spielraum genutzt werden kann.
Die äußere Gestaltung ist zurückhaltend, lediglich der Putz ist mit einem vertikalen Strichcode aus unterschiedlichen Putzstrukturen versehen, um der Gebäudelänge entgegenzuwirken, sowie farbigen Fenster-und Türleibungen. Auch die Innere Gestaltung verzichtet auf intensive Farben um Kindern und Nutzern viel Gestaltungsspielraum zu lassen, lebendig und bunt wird das Haus durch die Kinder.
Projektdaten
Adresse
Berliner Straße 52
99091 Erfurt
Planungsbüro
Hauschild Jugel Architekten PartGmbB, Erfurt
Bauherr
Stadtverwaltung Erfurt, Amt für Grundtsücks- und Gebäudeverwaltung,
Fertigstellung
April 2017
Nutzfläche
1514 m2
An dieser Stelle wird eine Google-Maps-Karte angezeigt, wenn Sie das Speichern der entsprechenden Cookies erlaubt haben. Dies können Sie über die Privatsphäre-Einstellungen jederzeit tun.
Zugeordnete Schlagworte und Sammlungen
Weitere Projekte des gleichen Büros (20)
-
Neubau Altstadtquartier am Georgsturm
Erfurt
Georgsgasse 4,5,6,7, Weiße Gasse 29,30, 99084 Erfurt
Hauschild Jugel Architekten PartGmbB, Erfurt
-
Neubau Mehrfamilienwohnhaus Dalbergsweg
Erfurt
Dalbergsweg 35, 99084 Erfurt OT Brühlervorstadt
Hauschild Jugel Architekten PartGmbB, Erfurt
-
Neubau Wohnhaus Kleine Arche in Erfurt
Erfurt
Kleine Arche 1b, 99084 Erfurt
Hauschild Jugel Architekten PartGmbB, Erfurt
-
Modernisierung Gästehaus Dreibrunnen in Erfurt
Erfurt
Winzerstraße, 99094 Erfurt
Hauschild Jugel Architekten PartGmbB, Erfurt
-
Neubau Trommsdorffstraße 29-31
Erfurt
Trommsdorffstraße 29-31, 99084 Erfurt
Hauschild Jugel Architekten PartGmbB, Erfurt
-
-
KL 28 Mehrfamilienhaus
Erfurt
Klausener Straße 28, 99099 Erfurt
Hauschild Jugel Architekten PartGmbB, Erfurt
-
Neubau Konventgebäude Ursulinenkloster
Erfurt
Anger 5, 99084 Erfurt
Hauschild Jugel Architekten PartGmbB, Erfurt
-
St. Elisabeth Haus Erweiterung Altenpflegezentrum Caritas
Rudolstadt
Caspar-Schulte-Straße 10-12, 07407 Rudolstadt
Hauschild Jugel Architekten PartGmbB, Erfurt
Architektur- und Ingenieurbüro Dr. Gutjahr, Erfurt -
Neubau Tagesbetreuung Elisabethgarten Caritas
Erfurt
Rückertstraße 5a, 99096 Erfurt
Hauschild Jugel Architekten PartGmbB, Erfurt
-
Haus Am Bache Mehrgenerationswohnen und Tagestreff
Erfurt
Am Bache 7, 99094 Erfurt OT Hochheim
Hauschild Jugel Architekten PartGmbB, Erfurt
-
Wohn- und Begegnungshaus MIA Brühlerstraße 39 Erfurt
Erfurt
Brühlerstraße 39, 99084 Erfurt
Hauschild Jugel Architekten PartGmbB, Erfurt
-
Zuhause für Fahrrad + Co, Wirtschaftshof Personalamt Erfurt
Erfurt
Meister- Eckehart- Str. 2, 99084 Erfurt
Hauschild Jugel Architekten PartGmbB, Erfurt
-
Kinder-und Jugendbibliothek Erfurt
Erfurt
Marktstraße 21, 99084 Erfurt
Hauschild Jugel Architekten PartGmbB, Erfurt
-
Wohnstätte Lebenshilfe Erfurt
Erfurt
Ottostraße 10, 99092 Erfurt
Hauschild Jugel Architekten PartGmbB, Erfurt
-
Umbau und Erweiterung Haus Espachstraße 8
Erfurt
Espachstraße 8, 99094 Erfurt
Hauschild Jugel Architekten PartGmbB, Erfurt
-
Sanierung Rathaus Greußen
Greußen
Markt 1, 99718 Greußen
Hauschild Jugel Architekten PartGmbB, Erfurt
-
Neubau Turniergasse 15 und Sanierung Turniergasse 16
Erfurt
Turniergasse 15 + 16, 99084 Erfurt
Hauschild Jugel Architekten PartGmbB, Erfurt
-
Radhof Am Augustinerkloster
Erfurt
Kirchgasse 1b, 99084 Erfurt
Hauschild Jugel Architekten PartGmbB, Erfurt
Letzte Aktualisierung dieser Seite am: 16.05.2017. Alle Angaben auf dieser Seite werden durch das Büro Hauschild Jugel Architekten PartGmbB, Erfurt auf freiwilliger Basis verwaltet. Das Büro ist für den Inhalt dieser Seite selbst verantwortlich. Die Angaben werden von der Architektenkammer Thüringen nicht geprüft.