Modernisierung Gästehaus Dreibrunnen in Erfurt
13 Projektbilder
-
Rezeption im Foyer, Bild: Lars Jugel -
gaestehaus-dreibrunnen-tresen-rezeption.jpg, Bild: Lars Jugel -
gaestehaus-dreibrunnen-zimmer-sitzecke.jpg, Bild: Lars Jugel -
gaestehaus-dreibrunnen-zimmer.jpg, Bild: Lars Jugel -
gaestehaus-dreibrunnen-zimmer-eg.jpg, Bild: Lars Jugel -
Gaestehaus Dreibrunnen Bettnische, Bild: Lars Jugel -
gaestehaus-dreibrunnen-alkoven-bettnische.jpg, Bild: Lars Jugel -
gaestehaus-dreibrunnen-alkoven-nische.jpg, Bild: Lars Jugel -
Gaestehaus Dreibrunnen Bad, Bild: Lars Jugel -
gaestehaus-dreibrunnen-grosses-zimmer.jpg, Bild: Lars Jugel -
gaestehaus-dreibrunnen-doppelbett.jpg, Bild: Lars Jugel -
Gaestehaus Dreibrunnen Betten, Bild: Lars Jugel -
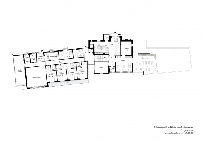
Winzerstrasse Grundriss Erdgeschoss, Bild: Lars Jugel
Projektbeschreibung
Das Gästehaus Dreibrunnen der Lebenshilfe Erfurt, welches an den Luisenpark angrenzt, bietet Bildungs- und Weiterbildungsmaßnahmen, sowie Übernachtungsmöglichkeiten an. Mit der Modernisierung des Gästehauses wurde die Qualität und der Komfort der angebotenen Übernachtungen deutlich verbessert, durch eine neue räumliche Anordnung der Eingangssituation, sowie der Gästezimmer und der Rettungswege im Ober- und Dachgeschoss. Im Erdgeschoss wurde die Eingangssituation offener und großzügiger gestaltet durch eine klare räumliche Verbindung des Foyers zu den beiden Speiseräumen und eine räumliche Neuordnung der Speiseräume zueinander. Die Bäder der Gästezimmer im OG und DG wurden modernisiert und barriereärmer gestaltet. Für alle Zimmer wurde eine zeitgemäße, modulare und flexible Möblierung entwickelt.
Projektdaten
Adresse
Winzerstraße
99094 Erfurt
Planungsbüro
Hauschild Jugel Architekten PartGmbB, Erfurt
Bauherr
Lebenshilfe Erfurt Service gGmbH
Fertigstellung
September 2020
Nutzfläche
799 m2
An dieser Stelle wird eine Google-Maps-Karte angezeigt, wenn Sie das Speichern der entsprechenden Cookies erlaubt haben. Dies können Sie über die Privatsphäre-Einstellungen jederzeit tun.
Zugeordnete Schlagworte und Sammlungen
Weitere Projekte des gleichen Büros (20)
-
Neubau Altstadtquartier am Georgsturm
Erfurt
Georgsgasse 4,5,6,7, Weiße Gasse 29,30, 99084 Erfurt
Hauschild Jugel Architekten PartGmbB, Erfurt
-
Neubau Mehrfamilienwohnhaus Dalbergsweg
Erfurt
Dalbergsweg 35, 99084 Erfurt OT Brühlervorstadt
Hauschild Jugel Architekten PartGmbB, Erfurt
-
Neubau Wohnhaus Kleine Arche in Erfurt
Erfurt
Kleine Arche 1b, 99084 Erfurt
Hauschild Jugel Architekten PartGmbB, Erfurt
-
Neubau Trommsdorffstraße 29-31
Erfurt
Trommsdorffstraße 29-31, 99084 Erfurt
Hauschild Jugel Architekten PartGmbB, Erfurt
-
-
KL 28 Mehrfamilienhaus
Erfurt
Klausener Straße 28, 99099 Erfurt
Hauschild Jugel Architekten PartGmbB, Erfurt
-
KITA Spatzennest
Erfurt
Berliner Straße 52, 99091 Erfurt
Hauschild Jugel Architekten PartGmbB, Erfurt
-
Neubau Konventgebäude Ursulinenkloster
Erfurt
Anger 5, 99084 Erfurt
Hauschild Jugel Architekten PartGmbB, Erfurt
-
St. Elisabeth Haus Erweiterung Altenpflegezentrum Caritas
Rudolstadt
Caspar-Schulte-Straße 10-12, 07407 Rudolstadt
Hauschild Jugel Architekten PartGmbB, Erfurt
Architektur- und Ingenieurbüro Dr. Gutjahr, Erfurt
-
Neubau Tagesbetreuung Elisabethgarten Caritas
Erfurt
Rückertstraße 5a, 99096 Erfurt
Hauschild Jugel Architekten PartGmbB, Erfurt
-
Haus Am Bache Mehrgenerationswohnen und Tagestreff
Erfurt
Am Bache 7, 99094 Erfurt OT Hochheim
Hauschild Jugel Architekten PartGmbB, Erfurt
-
Wohn- und Begegnungshaus MIA Brühlerstraße 39 Erfurt
Erfurt
Brühlerstraße 39, 99084 Erfurt
Hauschild Jugel Architekten PartGmbB, Erfurt
-
Zuhause für Fahrrad + Co, Wirtschaftshof Personalamt Erfurt
Erfurt
Meister- Eckehart- Str. 2, 99084 Erfurt
Hauschild Jugel Architekten PartGmbB, Erfurt
-
Kinder-und Jugendbibliothek Erfurt
Erfurt
Marktstraße 21, 99084 Erfurt
Hauschild Jugel Architekten PartGmbB, Erfurt
-
Wohnstätte Lebenshilfe Erfurt
Erfurt
Ottostraße 10, 99092 Erfurt
Hauschild Jugel Architekten PartGmbB, Erfurt
-
Umbau und Erweiterung Haus Espachstraße 8
Erfurt
Espachstraße 8, 99094 Erfurt
Hauschild Jugel Architekten PartGmbB, Erfurt
-
Sanierung Rathaus Greußen
Greußen
Markt 1, 99718 Greußen
Hauschild Jugel Architekten PartGmbB, Erfurt
-
Neubau Turniergasse 15 und Sanierung Turniergasse 16
Erfurt
Turniergasse 15 + 16, 99084 Erfurt
Hauschild Jugel Architekten PartGmbB, Erfurt
-
Radhof Am Augustinerkloster
Erfurt
Kirchgasse 1b, 99084 Erfurt
Hauschild Jugel Architekten PartGmbB, Erfurt
Letzte Aktualisierung dieser Seite am: 18.05.2021. Alle Angaben auf dieser Seite werden durch das Büro Hauschild Jugel Architekten PartGmbB, Erfurt auf freiwilliger Basis verwaltet. Das Büro ist für den Inhalt dieser Seite selbst verantwortlich. Die Angaben werden von der Architektenkammer Thüringen nicht geprüft.