Ursulinenkloster Umbau altes Konventgebäude zur Bildungsstätte des Bistums Erfurt
17 Projektbilder
-
Ursulinenkloster Umbau Konventgebäude Fassade, Bild: Lars Jugel -
Innenhof, Bild: Lars Jugel -
Ursulinenkloster Umbau Konventgebäude Flur EG, Bild: Lars Jugel -
Bank mit Stuckrosette, Bild: Lars Jugel -
Ursulinenkloster Umbau Konventgebäude Seitenflur OG, Bild: Lars Jugel -
Ursulinenkloster Umbau Konventgebäude Haupttreppe zu DG, Bild: Lars Jugel -
Ursulinenkloster Umbau Konventgebäude Treppenaufgang DG, Bild: Lars Jugel -
Ursulinenkloster Umbau Konventgebäude Konferenzraum DG, Bild: Lars Jugel -
Konferenzraum Dachgeschoss, Bild: Lars Jugel -
Ursulinenkloster Umbau Konventgebäude Treppe DG Eiche, Bild: Lars Jugel -
Ursulinenkloster Umbau Konventgebäude Aufenthalt DG Aufzug, Bild: Lars Jugel -
Ursulinenkloster Umbau Konventgebäude Oase, Bild: Lars Jugel -
Ursulinenkloster Umbau Konventgebäude WC Dachgeschoss, Bild: Lars Jugel -
Haupttreppe im Erdgeschoss, Bild: Lars Jugel -
Ursulinenkloster Umbau Konventgebäude Haupttreppe OG, Bild: Lars Jugel -
Ursulinenkloster Umbau Konventgebäude Büro, Bild: Lars Jugel -
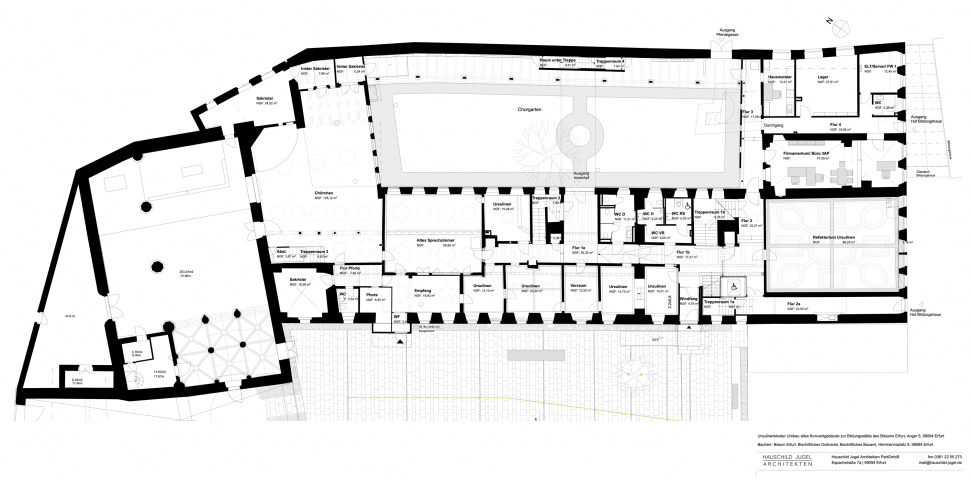
Grundriss Erdgeschoss, Bild: Lutz Hauschild
Projektbeschreibung
Die Ursprünge des denkmalgeschützten Gebäudes gehen bis 1136 zurück. Über die Jahrhunderte erfolgten zahlreiche Neu- und Erweiterungsbauten. Die Ursulinen übernahmen 1667 das Klostergebäude und gestalteten es 1672 und 1712/1713 im barocken Stil. Nachdem sie 2017 das neue Konventgebäude bezogen haben, wurden für das Kloster neue Nutzer, die Hauptabteilung Pastoral und Bildungseinrichtungen des Bistums, gefunden. Für die barrierearme Erschließung wurde ein Personenaufzug eingebaut. Die Sanierung der stark geschädigten Decke des Obergeschosses und die Erneuerung der Dachkonstruktion des Westflügels stellten eine besondere Herausforderung dar. Im Dachgeschoss wurde ein Konferenzbereich eingerichtet. Das Gebäude zeigt das behutsame Miteinander zeitgemäßer Anforderungen und barocken Charmes.
Projektdaten
Adresse
Anger 5
99084 Erfurt
Planungsbüro
Hauschild Jugel Architekten PartGmbB, Erfurt
Bauherr
Bistum Erfurt, Bischöfliches Ordinariat, Bischöfliches Bauamt
Fertigstellung
März 2025
Nutzfläche
1800 m2
An dieser Stelle wird eine Google-Maps-Karte angezeigt, wenn Sie das Speichern der entsprechenden Cookies erlaubt haben. Dies können Sie über die Privatsphäre-Einstellungen jederzeit tun.
Zugeordnete Schlagworte und Sammlungen
Weitere Projekte des gleichen Büros (20)
-
Neubau Altstadtquartier am Georgsturm
Erfurt
Georgsgasse 4,5,6,7, Weiße Gasse 29,30, 99084 Erfurt
Hauschild Jugel Architekten PartGmbB, Erfurt
-
Neubau Mehrfamilienwohnhaus Dalbergsweg
Erfurt
Dalbergsweg 35, 99084 Erfurt OT Brühlervorstadt
Hauschild Jugel Architekten PartGmbB, Erfurt
-
Neubau Wohnhaus Kleine Arche in Erfurt
Erfurt
Kleine Arche 1b, 99084 Erfurt
Hauschild Jugel Architekten PartGmbB, Erfurt
-
Modernisierung Gästehaus Dreibrunnen in Erfurt
Erfurt
Winzerstraße, 99094 Erfurt
Hauschild Jugel Architekten PartGmbB, Erfurt
-
Neubau Trommsdorffstraße 29-31
Erfurt
Trommsdorffstraße 29-31, 99084 Erfurt
Hauschild Jugel Architekten PartGmbB, Erfurt
-
-
KL 28 Mehrfamilienhaus
Erfurt
Klausener Straße 28, 99099 Erfurt
Hauschild Jugel Architekten PartGmbB, Erfurt
-
KITA Spatzennest
Erfurt
Berliner Straße 52, 99091 Erfurt
Hauschild Jugel Architekten PartGmbB, Erfurt
-
Neubau Konventgebäude Ursulinenkloster
Erfurt
Anger 5, 99084 Erfurt
Hauschild Jugel Architekten PartGmbB, Erfurt
-
St. Elisabeth Haus Erweiterung Altenpflegezentrum Caritas
Rudolstadt
Caspar-Schulte-Straße 10-12, 07407 Rudolstadt
Hauschild Jugel Architekten PartGmbB, Erfurt
Architektur- und Ingenieurbüro Dr. Gutjahr, Erfurt -
Neubau Tagesbetreuung Elisabethgarten Caritas
Erfurt
Rückertstraße 5a, 99096 Erfurt
Hauschild Jugel Architekten PartGmbB, Erfurt
-
Haus Am Bache Mehrgenerationswohnen und Tagestreff
Erfurt
Am Bache 7, 99094 Erfurt OT Hochheim
Hauschild Jugel Architekten PartGmbB, Erfurt
-
Wohn- und Begegnungshaus MIA Brühlerstraße 39 Erfurt
Erfurt
Brühlerstraße 39, 99084 Erfurt
Hauschild Jugel Architekten PartGmbB, Erfurt
-
Zuhause für Fahrrad + Co, Wirtschaftshof Personalamt Erfurt
Erfurt
Meister- Eckehart- Str. 2, 99084 Erfurt
Hauschild Jugel Architekten PartGmbB, Erfurt
-
Kinder-und Jugendbibliothek Erfurt
Erfurt
Marktstraße 21, 99084 Erfurt
Hauschild Jugel Architekten PartGmbB, Erfurt
-
Wohnstätte Lebenshilfe Erfurt
Erfurt
Ottostraße 10, 99092 Erfurt
Hauschild Jugel Architekten PartGmbB, Erfurt
-
Umbau und Erweiterung Haus Espachstraße 8
Erfurt
Espachstraße 8, 99094 Erfurt
Hauschild Jugel Architekten PartGmbB, Erfurt
-
Sanierung Rathaus Greußen
Greußen
Markt 1, 99718 Greußen
Hauschild Jugel Architekten PartGmbB, Erfurt
-
Neubau Turniergasse 15 und Sanierung Turniergasse 16
Erfurt
Turniergasse 15 + 16, 99084 Erfurt
Hauschild Jugel Architekten PartGmbB, Erfurt
-
Radhof Am Augustinerkloster
Erfurt
Kirchgasse 1b, 99084 Erfurt
Hauschild Jugel Architekten PartGmbB, Erfurt
Letzte Aktualisierung dieser Seite am: 06.06.2025. Alle Angaben auf dieser Seite werden durch das Büro Hauschild Jugel Architekten PartGmbB, Erfurt auf freiwilliger Basis verwaltet. Das Büro ist für den Inhalt dieser Seite selbst verantwortlich. Die Angaben werden von der Architektenkammer Thüringen nicht geprüft.