Erweiterung Werkhalle · Heringen
16 Projektbilder
-
Detailansicht Fassade, Bild: Tobias Winkler -
Giebelansicht Werkhalle Westseite, Bild: Tobias Winkler -
Ansicht Werkhalle Nordost, Bild: Tobias Winkler -
Ansicht Werkhalle Nordwest, Bild: Tobias Winkler -
Ansicht Werkhalle Südwest, Bild: Tobias Winkler -
Ansicht Werkhalle Südost, Bild: Tobias Winkler -
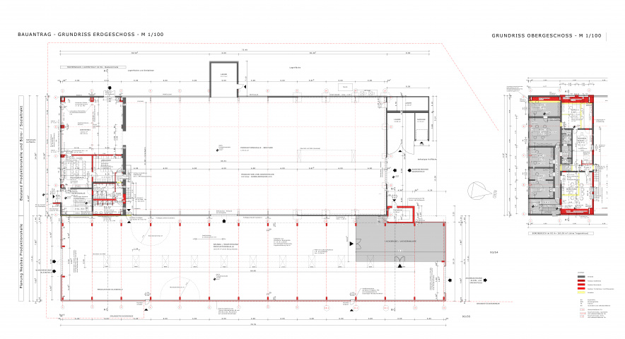
Grundriss Werkhalle, Bild: Tobias Winkler -
Lageplan, Bild: Tobias Winkler -
Innenansicht Werkhalle, Bild: Tobias Winkler -
Ansicht Nordwest Werkhalle, Bild: Tobias Winkler -
Detailansicht Giebel, Bild: Tobias Winkler -
Straßenansicht Werkhalle, Bild: Tobias Winkler -
Nordansicht Werkhalle, Bild: Tobias Winkler -
Westseite, Bild: Tobias Winkler -
Detailansicht Südfassade, Bild: Tobias Winkler -
Westfassade Werkhalle, Bild: Tobias Winkler
Projektbeschreibung
Die BETA Maschinenbau GmbH & Co, KG ist spezialisiert auf die Herstellung von Betonwerktechnik und Hebetechnik und beliefert bundes- und europaweit Kunden der Betonindustrie mit notwendiger Schal- und Hebetechnik. Notwendig war die Erweiterung des bestehenden Produktionsstandortes durch den Anbau einer neuen Werkhalle mit ca. 1.300 m² Bruttogrundfläche in Stahlbeton-Fertigteilbauweise. Wesentlich für die Fassadengestaltung der Werkhalle ist die Verwendung der Firmenfarben in Form von vertikalen Farbstreifen, die ebenso eine Auflockerung der Gebäudemasse und eine Aufwertung des Produktionsstandortes bewirken.
Projektdaten
Adresse
Nordhäuser Straße 2
99765 Heringen
Planungsbüro
Architekturbüro Tobias Winkler, Nordhausen
Bauherr
BETA Maschinenbau GmbH & Co. KG
Fertigstellung
Februar 2018
Nutzfläche
1341 m2
An dieser Stelle wird eine Google-Maps-Karte angezeigt, wenn Sie das Speichern der entsprechenden Cookies erlaubt haben. Dies können Sie über die Privatsphäre-Einstellungen jederzeit tun.
Zugeordnete Schlagworte und Sammlungen
Weitere Projekte des gleichen Büros (34)
-
Aufstockung eines Parkhauses mit Ferienhäuser
Nordhausen
Friedrichstraße 11a, 99734 Nordhausen
Architekturbüro Tobias Winkler, Nordhausen
Tag der Architektur 2026
Samstag, 27.06.2026 – geöffnet 14:00-16:00, Führungen 14:00, 15:00 (Treffpunkt: Eingang Hotel)
-
Umbau und Erweiterung eines Kindergartens
Sondershausen
Alexander-Puschkin-Promenade 22, 99706 Sondershausen
Architekturbüro Tobias Winkler, Nordhausen
Tag der Architektur 2026
Samstag, 27.06.2026 – geöffnet 10:00-12:00, Führungen 10:00, 11:00 (Treffpunkt: Eingang)
-
Erweiterung Seniorenzentrum „Glück Auf“
Bleicherode
Gartenstraße 4, 99752 Bleicherode
Architekturbüro Tobias Winkler, Nordhausen
-
Sanierung und Erweiterung Feuerwehr-Gerätehaus
Nordhausen
Schafgasse 1, 99734 Nordhausen OT Petersdorf
Architekturbüro Tobias Winkler, Nordhausen
-
Umnutzung und Umbau der ehemaligen Stadtbibliothek zu einem Kindergarten
Sondershausen
Schlosspark 19, 99706 Sondershausen
Architekturbüro Tobias Winkler, Nordhausen
-
Umnutzung und Sanierung eines gewerblichen Hallenkomplexes
Nordhausen
Rathsfelder Straße 6, 99734 Nordhausen
Architekturbüro Tobias Winkler, Nordhausen
-
Neubau einer Freilichtbühne
Nordhausen
Günzeröder Straße 24, 99734 Nordhausen OT Hochstedt
Architekturbüro Tobias Winkler, Nordhausen
-
Neubau eines Wohnhauses
Werther
Große Lehne 1a, 99735 Werther
Architekturbüro Tobias Winkler, Nordhausen
-
Neubau eines Wohnhaus
Sondershausen
Damaschkestraße 49, 99706 Sondershausen
Architekturbüro Tobias Winkler, Nordhausen
-
Kindergarten Brummkreisel - Neugestaltung von Fassade und Außenanlagen
Nordhausen
Schumannstraße 44, 99734 Nordhausen
Architekturbüro Tobias Winkler, Nordhausen
-
Umbau und Umnutzung der Post Heiligenstadt
Heiligenstadt
Petristraße 20, 37308 Heiligenstadt
Architekturbüro Tobias Winkler, Nordhausen
-
Neubau des Kindergartens "Gartenkinder"
Bleicherode
Gartenstraße 5, 99752 Bleicherode
Architekturbüro Tobias Winkler, Nordhausen
-
Umnutzung und Umbau des Hochhauses am Grimmelhof
Nordhausen
Grimmelallee 4, 99734 Nordhausen
Architekturbüro Tobias Winkler, Nordhausen
-
Umnutzung und Umbau der "Alten Post" zu einer Wohnanlage
Nordhausen
Dr.-Külz-Straße 7, 99734 Nordhausen
Architekturbüro Tobias Winkler, Nordhausen
-
Neubau eines Mehrfamilien-Wohnhauses
Nordhausen
Altendorf 30, 99734 Nordhausen
Architekturbüro Tobias Winkler, Nordhausen
-
Neugestaltung Foyer der SWG mbH Nordhausen
Nordhausen
Geseniusstraße 3, 99734 Nordhausen
Architekturbüro Tobias Winkler, Nordhausen
-
Sanierung Wohn- und Geschäftshaus
Nordhausen
Hesseröder Straße 25, 99734 Nordhausen
Architekturbüro Tobias Winkler, Nordhausen
-
Sanierung / Modernisierung eines Wohn- und Geschäftshauses
Nordhausen
Ebertplatz 4, 99734 Nordhausen
Architekturbüro Tobias Winkler, Nordhausen
-
Neubau eines Mehrfamilien-Wohnhauses
Nordhausen
Rosengasse, 99734 Nordhausen
Architekturbüro Tobias Winkler, Nordhausen
-
Neubau einer Produktionshalle
Werther
Am Mühlweg 5, 99735 Werther
Architekturbüro Tobias Winkler, Nordhausen
-
Neubau eines Wohnhauses
Nordhausen
Schwalbenweg 18, 99734 Nordhausen
Architekturbüro Tobias Winkler, Nordhausen
-
Energetische Sanierung Gebäude 20
Nordhausen
Weinberghof 4, 99734 Nordhausen
Architekturbüro Tobias Winkler, Nordhausen
-
Neubau eines Wohnhauses
Neustadt
Osteröder Straße 17 , 99762 Neustadt
Architekturbüro Tobias Winkler, Nordhausen
-
Revitalisierung einer Produktionshalle mit Neubau eines Bürogebäudes
Nordhausen
Lokomotivenstraße 25, 99734 Nordhausen
Architekturbüro Tobias Winkler, Nordhausen
-
Wohnen am Fluss - Neubau einer Wohnanlage
Nordhausen
Van-der-Foehr-Damm 16 b, 99734 Nordhausen
Architekturbüro Tobias Winkler, Nordhausen
-
Neubau Seniorenzentrum "Glück Auf" in Bleicherode
Bleicherode
Gartenstraße 4, 99752 Bleicherode
Architekturbüro Tobias Winkler, Nordhausen
-
Neubau eines Wohnhauses mit Doppelgarage
Nordhausen
Heidelbergblick 41, 99734 Nordhausen
Architekturbüro Tobias Winkler, Nordhausen
-
Neubau eines Jugendgästehauses
Nordhausen
Parkallee 2, 99734 Nordhausen
Architekturbüro Tobias Winkler, Nordhausen
-
Neubau eines Einfamilien-Wohnhauses
Nordhausen
Heidelbergblick 41, 99734 Nordhausen
Architekturbüro Tobias Winkler, Nordhausen
-
Neubau eines Einfamilien-Wohnhauses
Nordhausen
Gartenstraße 11, 99734 Nordhausen OT Herreden
Architekturbüro Tobias Winkler, Nordhausen
-
-
Grundsanierung Gebäude 34
Nordhausen
Weinberghof 4, 99734 Nordhausen
Architekturbüro Tobias Winkler, Nordhausen
-
Modernisierung Wohnhaus mit Neubau eines Wintergartens
Lipprechterode
Krajaer Straße 163, 99752 Lipprechterode
Architekturbüro Tobias Winkler, Nordhausen
-
Sanierung und Modernisierung von Mehrfamilien-Wohnhäusern
Bleicherode
Danielstraße 4 - 7 und Burgstraße 52, 99752 Bleicherode
Architekturbüro Tobias Winkler, Nordhausen
Letzte Aktualisierung dieser Seite am: 07.03.2019. Alle Angaben auf dieser Seite werden durch das Büro Architekturbüro Tobias Winkler, Nordhausen auf freiwilliger Basis verwaltet. Das Büro ist für den Inhalt dieser Seite selbst verantwortlich. Die Angaben werden von der Architektenkammer Thüringen nicht geprüft.