Neubau eines Wohnhauses · Werther
11 Projektbilder
-
Giebelansicht Gartenseite, Bild: Tobias Winkler -
Gartenseite, Bild: Tobias Winkler -
Gartenseite, Bild: Tobias Winkler -
Ansicht Straßenseite, Bild: Constanze Kiel -
Ansicht Straßenseite, Bild: Constanze Kiel -
Innenansicht Wohnbereich, Bild: Constanze Kiel -
Grunriss Erdgeschoss, Bild: Tobias Winkler -
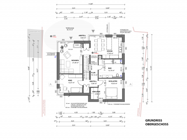
Grundriss Obergeschoss, Bild: Tobias Winkler -
Ansichten Wohnhaus, Bild: Tobias Winkler -
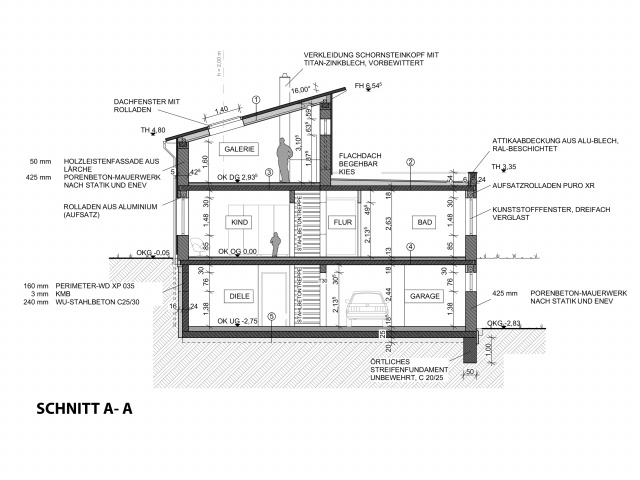
Gebäudeschnitt Wohnhaus, Bild: Tobias Winkler -
Lageplan Wohnhaus, Bild: Tobias Winkler
Projektbeschreibung
In der Gemeinde Werther, westlich von Nordhausen gelegen, entstand für eine vierköpfige Familie ein modernes Wohnhaus auf einem Hanggrundstück. Realisiert wurde ein großzügiges und modernes Raumkonzept mit den Bereichen Wohnen, Kochen und Essen im Erdgeschoss und den privaten Räumen wie Bad, Kinder- und Schlafzimmer im Dachgeschoss. Ausgeführt wurden das eingeschossige Wohnhaus mit Doppelgarage im Untergeschoss in zeitgemäßer und moderner Architektur. Der kubische Baukörper mit flach geneigtem Pultdach und Flachdach ist gegliedert in verputzte Fassadenteile und Flächen aus Holzleistenschalung.
Mit diesem zeitgemäßen Erscheinungsbild aus Holz und Putz fügt sich das neue Wohnhaus in das dörfliche Umfeld ein.
Projektdaten
Adresse
Große Lehne 1a
99735 Werther
Planungsbüro
Architekturbüro Tobias Winkler, Nordhausen
Bauherr
privat
Fertigstellung
Dezember 2021
Nutzfläche
237 m2
An dieser Stelle wird eine Google-Maps-Karte angezeigt, wenn Sie das Speichern der entsprechenden Cookies erlaubt haben. Dies können Sie über die Privatsphäre-Einstellungen jederzeit tun.
Zugeordnete Schlagworte und Sammlungen
Weitere Projekte des gleichen Büros (34)
-
Umbau und Erweiterung eines Kindergartens
Sondershausen
Alexander-Puschkin-Promenade 22, 99706 Sondershausen
Architekturbüro Tobias Winkler, Nordhausen
Tag der Architektur 2026
Samstag, 27.06.2026 – geöffnet 10:00-12:00, Führungen 10:00, 11:00 (Treffpunkt: Eingang)
-
Aufstockung eines Parkhauses mit Ferienhäuser
Nordhausen
Friedrichstraße 11a, 99734 Nordhausen
Architekturbüro Tobias Winkler, Nordhausen
Tag der Architektur 2026
Samstag, 27.06.2026 – geöffnet 14:00-16:00, Führungen 14:00, 15:00 (Treffpunkt: Eingang Hotel)
-
Erweiterung Seniorenzentrum „Glück Auf“
Bleicherode
Gartenstraße 4, 99752 Bleicherode
Architekturbüro Tobias Winkler, Nordhausen
-
Sanierung und Erweiterung Feuerwehr-Gerätehaus
Nordhausen
Schafgasse 1, 99734 Nordhausen OT Petersdorf
Architekturbüro Tobias Winkler, Nordhausen
-
Umnutzung und Umbau der ehemaligen Stadtbibliothek zu einem Kindergarten
Sondershausen
Schlosspark 19, 99706 Sondershausen
Architekturbüro Tobias Winkler, Nordhausen
-
Umnutzung und Sanierung eines gewerblichen Hallenkomplexes
Nordhausen
Rathsfelder Straße 6, 99734 Nordhausen
Architekturbüro Tobias Winkler, Nordhausen
-
Neubau einer Freilichtbühne
Nordhausen
Günzeröder Straße 24, 99734 Nordhausen OT Hochstedt
Architekturbüro Tobias Winkler, Nordhausen
-
Neubau eines Wohnhaus
Sondershausen
Damaschkestraße 49, 99706 Sondershausen
Architekturbüro Tobias Winkler, Nordhausen
-
Kindergarten Brummkreisel - Neugestaltung von Fassade und Außenanlagen
Nordhausen
Schumannstraße 44, 99734 Nordhausen
Architekturbüro Tobias Winkler, Nordhausen
-
Umbau und Umnutzung der Post Heiligenstadt
Heiligenstadt
Petristraße 20, 37308 Heiligenstadt
Architekturbüro Tobias Winkler, Nordhausen
-
Neubau des Kindergartens "Gartenkinder"
Bleicherode
Gartenstraße 5, 99752 Bleicherode
Architekturbüro Tobias Winkler, Nordhausen
-
Umnutzung und Umbau des Hochhauses am Grimmelhof
Nordhausen
Grimmelallee 4, 99734 Nordhausen
Architekturbüro Tobias Winkler, Nordhausen
-
Umnutzung und Umbau der "Alten Post" zu einer Wohnanlage
Nordhausen
Dr.-Külz-Straße 7, 99734 Nordhausen
Architekturbüro Tobias Winkler, Nordhausen
-
Neubau eines Mehrfamilien-Wohnhauses
Nordhausen
Altendorf 30, 99734 Nordhausen
Architekturbüro Tobias Winkler, Nordhausen
-
Neugestaltung Foyer der SWG mbH Nordhausen
Nordhausen
Geseniusstraße 3, 99734 Nordhausen
Architekturbüro Tobias Winkler, Nordhausen
-
Sanierung Wohn- und Geschäftshaus
Nordhausen
Hesseröder Straße 25, 99734 Nordhausen
Architekturbüro Tobias Winkler, Nordhausen
-
Erweiterung Werkhalle
Heringen
Nordhäuser Straße 2, 99765 Heringen
Architekturbüro Tobias Winkler, Nordhausen
-
Sanierung / Modernisierung eines Wohn- und Geschäftshauses
Nordhausen
Ebertplatz 4, 99734 Nordhausen
Architekturbüro Tobias Winkler, Nordhausen
-
Neubau eines Mehrfamilien-Wohnhauses
Nordhausen
Rosengasse, 99734 Nordhausen
Architekturbüro Tobias Winkler, Nordhausen
-
Neubau einer Produktionshalle
Werther
Am Mühlweg 5, 99735 Werther
Architekturbüro Tobias Winkler, Nordhausen
-
Neubau eines Wohnhauses
Nordhausen
Schwalbenweg 18, 99734 Nordhausen
Architekturbüro Tobias Winkler, Nordhausen
-
Energetische Sanierung Gebäude 20
Nordhausen
Weinberghof 4, 99734 Nordhausen
Architekturbüro Tobias Winkler, Nordhausen
-
Neubau eines Wohnhauses
Neustadt
Osteröder Straße 17 , 99762 Neustadt
Architekturbüro Tobias Winkler, Nordhausen
-
Revitalisierung einer Produktionshalle mit Neubau eines Bürogebäudes
Nordhausen
Lokomotivenstraße 25, 99734 Nordhausen
Architekturbüro Tobias Winkler, Nordhausen
-
Wohnen am Fluss - Neubau einer Wohnanlage
Nordhausen
Van-der-Foehr-Damm 16 b, 99734 Nordhausen
Architekturbüro Tobias Winkler, Nordhausen
-
Neubau Seniorenzentrum "Glück Auf" in Bleicherode
Bleicherode
Gartenstraße 4, 99752 Bleicherode
Architekturbüro Tobias Winkler, Nordhausen
-
Neubau eines Wohnhauses mit Doppelgarage
Nordhausen
Heidelbergblick 41, 99734 Nordhausen
Architekturbüro Tobias Winkler, Nordhausen
-
Neubau eines Jugendgästehauses
Nordhausen
Parkallee 2, 99734 Nordhausen
Architekturbüro Tobias Winkler, Nordhausen
-
Neubau eines Einfamilien-Wohnhauses
Nordhausen
Heidelbergblick 41, 99734 Nordhausen
Architekturbüro Tobias Winkler, Nordhausen
-
Neubau eines Einfamilien-Wohnhauses
Nordhausen
Gartenstraße 11, 99734 Nordhausen OT Herreden
Architekturbüro Tobias Winkler, Nordhausen
-
-
Grundsanierung Gebäude 34
Nordhausen
Weinberghof 4, 99734 Nordhausen
Architekturbüro Tobias Winkler, Nordhausen
-
Modernisierung Wohnhaus mit Neubau eines Wintergartens
Lipprechterode
Krajaer Straße 163, 99752 Lipprechterode
Architekturbüro Tobias Winkler, Nordhausen
-
Sanierung und Modernisierung von Mehrfamilien-Wohnhäusern
Bleicherode
Danielstraße 4 - 7 und Burgstraße 52, 99752 Bleicherode
Architekturbüro Tobias Winkler, Nordhausen
Letzte Aktualisierung dieser Seite am: 16.05.2023. Alle Angaben auf dieser Seite werden durch das Büro Architekturbüro Tobias Winkler, Nordhausen auf freiwilliger Basis verwaltet. Das Büro ist für den Inhalt dieser Seite selbst verantwortlich. Die Angaben werden von der Architektenkammer Thüringen nicht geprüft.