Umnutzung und Umbau der "Alten Post" zu einer Wohnanlage · Nordhausen
24 Projektbilder
-
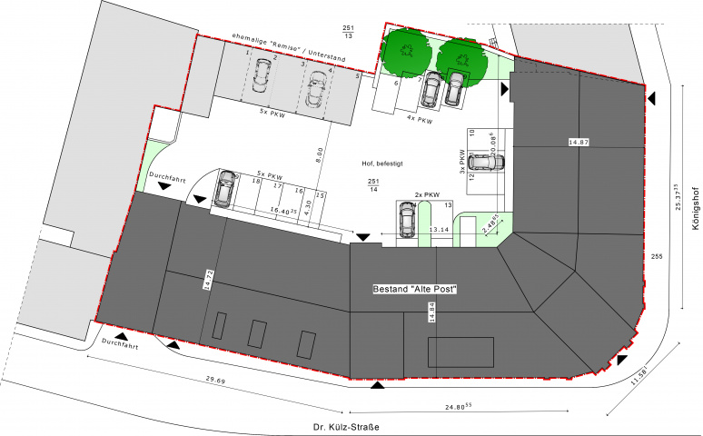
Lageplan, Bild: Tobias Winkler -
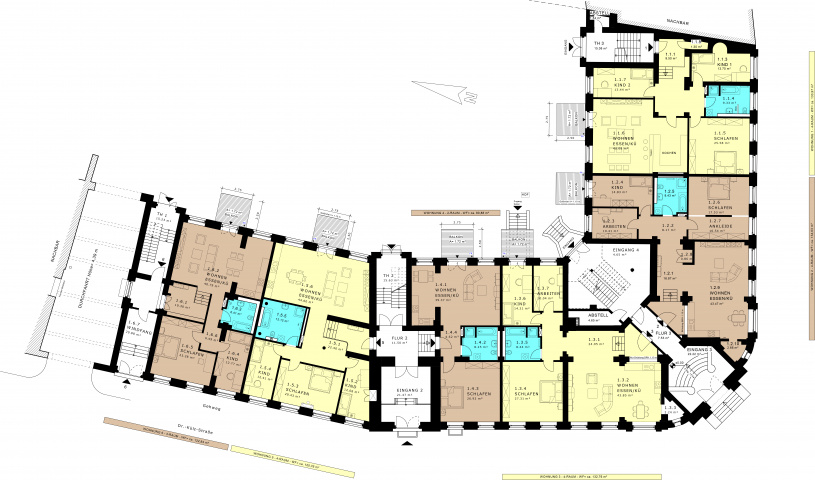
Grundriss Erdgeschoss, Bild: Tobias Winkler -
Grundriss Obergeschoss, Bild: Tobias Winkler -
Ansicht Hofseite, Bild: Tobias Winkler -
Gebäudeschnitt, Bild: Tobias Winkler -
Innenansicht Wohnung, Bild: Tobias Winkler -
Innenansicht Wohnung - Diele, Bild: Tobias Winkler -
Innenansicht Wohnung, Bild: Tobias Winkler -
Hofansicht mit neuer Balkonanlage, Bild: Tobias Winkler -
Straßenansicht Alte Post - Dr.-W.-Külz-Straße, Bild: Tobias Winkler -
Haupteingang Alte Post - Straßenseite, Bild: Tobias Winkler -
Ansicht historische Straßenfassade, Bild: Tobias Winkler -
Hauptansicht Alte Post, Bild: Tobias Winkler -
Detail historischer Haupteingang, Bild: Tobias Winkler -
Straßenansicht, Bild: Tobias Winkler -
Hofansicht mit neuer Balkonanlage, Bild: Tobias Winkler -
Detail Neubau Balkon, Bild: Tobias Winkler -
Detail historische Straßenfassade, Bild: Tobias Winkler -
Straßenansicht Alte Post - Haupteingang, Bild: Tobias Winkler -
Detailansicht Haupteingang, Bild: Tobias Winkler -
Hofansicht mit neuer Balkonanlage, Bild: Tobias Winkler -
Detailansicht Fassade, Bild: Tobias Winkler -
Straßenansicht Alte Post - Dr.-W.-Külz-Straße, Bild: Tobias Winkler -
Ansichten, Bild: Tobias Winkler
Projektbeschreibung
Umfangreich und aufwendig saniert wurde 2015-2016 die 1878 errichtete "Alte Post" in der Nordhäuser Innenstadt. Bis 2015 überwiegend leerstehend, erfolgte dann durch den Bauherrn die Umnutzung des ehemaligen Postgebäudes zu einer Wohnanlage mit 18 großzügigen Mietwohnungen unterschiedlicher Größe. Wesentlicher Aspekt bei der Umnutzung und Sanierung war der Erhalt der historischen und reich verzierten Verblendmauerwerksfassaden an Straßen- und Hofseite, der historischen Treppenhäuser und Innentüren aus der Entstehungszeit. Historische Guß-Stützen im Gebäude wurden in die neuen Wohnungs-grundrissen integriert. Durch die Revitalisierung des heute unter Denkmalschutz stehenden Gebäudes konnte ein bauhistorisch wertvolles Gebäudeensemble in der Nordhäuser Innenstadt bewahrt werden.
Projektdaten
Adresse
Dr.-Külz-Straße 7
99734 Nordhausen
Planungsbüro
Architekturbüro Tobias Winkler, Nordhausen
Bauherr
Axel Heck Immobilien
Fertigstellung
Juli 2016
Nutzfläche
2725 m2
An dieser Stelle wird eine Google-Maps-Karte angezeigt, wenn Sie das Speichern der entsprechenden Cookies erlaubt haben. Dies können Sie über die Privatsphäre-Einstellungen jederzeit tun.
Zugeordnete Schlagworte und Sammlungen
Weitere Projekte des gleichen Büros (34)
-
Umbau und Erweiterung eines Kindergartens
Sondershausen
Alexander-Puschkin-Promenade 22, 99706 Sondershausen
Architekturbüro Tobias Winkler, Nordhausen
Tag der Architektur 2026
Samstag, 27.06.2026 – geöffnet 10:00-12:00, Führungen 10:00, 11:00 (Treffpunkt: Eingang)
-
Aufstockung eines Parkhauses mit Ferienhäuser
Nordhausen
Friedrichstraße 11a, 99734 Nordhausen
Architekturbüro Tobias Winkler, Nordhausen
Tag der Architektur 2026
Samstag, 27.06.2026 – geöffnet 14:00-16:00, Führungen 14:00, 15:00 (Treffpunkt: Eingang Hotel)
-
Erweiterung Seniorenzentrum „Glück Auf“
Bleicherode
Gartenstraße 4, 99752 Bleicherode
Architekturbüro Tobias Winkler, Nordhausen
-
Sanierung und Erweiterung Feuerwehr-Gerätehaus
Nordhausen
Schafgasse 1, 99734 Nordhausen OT Petersdorf
Architekturbüro Tobias Winkler, Nordhausen
-
Umnutzung und Umbau der ehemaligen Stadtbibliothek zu einem Kindergarten
Sondershausen
Schlosspark 19, 99706 Sondershausen
Architekturbüro Tobias Winkler, Nordhausen
-
Umnutzung und Sanierung eines gewerblichen Hallenkomplexes
Nordhausen
Rathsfelder Straße 6, 99734 Nordhausen
Architekturbüro Tobias Winkler, Nordhausen
-
Neubau einer Freilichtbühne
Nordhausen
Günzeröder Straße 24, 99734 Nordhausen OT Hochstedt
Architekturbüro Tobias Winkler, Nordhausen
-
Neubau eines Wohnhauses
Werther
Große Lehne 1a, 99735 Werther
Architekturbüro Tobias Winkler, Nordhausen
-
Neubau eines Wohnhaus
Sondershausen
Damaschkestraße 49, 99706 Sondershausen
Architekturbüro Tobias Winkler, Nordhausen
-
Kindergarten Brummkreisel - Neugestaltung von Fassade und Außenanlagen
Nordhausen
Schumannstraße 44, 99734 Nordhausen
Architekturbüro Tobias Winkler, Nordhausen
-
Umbau und Umnutzung der Post Heiligenstadt
Heiligenstadt
Petristraße 20, 37308 Heiligenstadt
Architekturbüro Tobias Winkler, Nordhausen
-
Neubau des Kindergartens "Gartenkinder"
Bleicherode
Gartenstraße 5, 99752 Bleicherode
Architekturbüro Tobias Winkler, Nordhausen
-
Umnutzung und Umbau des Hochhauses am Grimmelhof
Nordhausen
Grimmelallee 4, 99734 Nordhausen
Architekturbüro Tobias Winkler, Nordhausen
-
Neubau eines Mehrfamilien-Wohnhauses
Nordhausen
Altendorf 30, 99734 Nordhausen
Architekturbüro Tobias Winkler, Nordhausen
-
Neugestaltung Foyer der SWG mbH Nordhausen
Nordhausen
Geseniusstraße 3, 99734 Nordhausen
Architekturbüro Tobias Winkler, Nordhausen
-
Sanierung Wohn- und Geschäftshaus
Nordhausen
Hesseröder Straße 25, 99734 Nordhausen
Architekturbüro Tobias Winkler, Nordhausen
-
Erweiterung Werkhalle
Heringen
Nordhäuser Straße 2, 99765 Heringen
Architekturbüro Tobias Winkler, Nordhausen
-
Sanierung / Modernisierung eines Wohn- und Geschäftshauses
Nordhausen
Ebertplatz 4, 99734 Nordhausen
Architekturbüro Tobias Winkler, Nordhausen
-
Neubau eines Mehrfamilien-Wohnhauses
Nordhausen
Rosengasse, 99734 Nordhausen
Architekturbüro Tobias Winkler, Nordhausen
-
Neubau einer Produktionshalle
Werther
Am Mühlweg 5, 99735 Werther
Architekturbüro Tobias Winkler, Nordhausen
-
Neubau eines Wohnhauses
Nordhausen
Schwalbenweg 18, 99734 Nordhausen
Architekturbüro Tobias Winkler, Nordhausen
-
Energetische Sanierung Gebäude 20
Nordhausen
Weinberghof 4, 99734 Nordhausen
Architekturbüro Tobias Winkler, Nordhausen
-
Neubau eines Wohnhauses
Neustadt
Osteröder Straße 17 , 99762 Neustadt
Architekturbüro Tobias Winkler, Nordhausen
-
Revitalisierung einer Produktionshalle mit Neubau eines Bürogebäudes
Nordhausen
Lokomotivenstraße 25, 99734 Nordhausen
Architekturbüro Tobias Winkler, Nordhausen
-
Wohnen am Fluss - Neubau einer Wohnanlage
Nordhausen
Van-der-Foehr-Damm 16 b, 99734 Nordhausen
Architekturbüro Tobias Winkler, Nordhausen
-
Neubau Seniorenzentrum "Glück Auf" in Bleicherode
Bleicherode
Gartenstraße 4, 99752 Bleicherode
Architekturbüro Tobias Winkler, Nordhausen
-
Neubau eines Wohnhauses mit Doppelgarage
Nordhausen
Heidelbergblick 41, 99734 Nordhausen
Architekturbüro Tobias Winkler, Nordhausen
-
Neubau eines Jugendgästehauses
Nordhausen
Parkallee 2, 99734 Nordhausen
Architekturbüro Tobias Winkler, Nordhausen
-
Neubau eines Einfamilien-Wohnhauses
Nordhausen
Heidelbergblick 41, 99734 Nordhausen
Architekturbüro Tobias Winkler, Nordhausen
-
Neubau eines Einfamilien-Wohnhauses
Nordhausen
Gartenstraße 11, 99734 Nordhausen OT Herreden
Architekturbüro Tobias Winkler, Nordhausen
-
-
Grundsanierung Gebäude 34
Nordhausen
Weinberghof 4, 99734 Nordhausen
Architekturbüro Tobias Winkler, Nordhausen
-
Modernisierung Wohnhaus mit Neubau eines Wintergartens
Lipprechterode
Krajaer Straße 163, 99752 Lipprechterode
Architekturbüro Tobias Winkler, Nordhausen
-
Sanierung und Modernisierung von Mehrfamilien-Wohnhäusern
Bleicherode
Danielstraße 4 - 7 und Burgstraße 52, 99752 Bleicherode
Architekturbüro Tobias Winkler, Nordhausen
Letzte Aktualisierung dieser Seite am: 03.01.2020. Alle Angaben auf dieser Seite werden durch das Büro Architekturbüro Tobias Winkler, Nordhausen auf freiwilliger Basis verwaltet. Das Büro ist für den Inhalt dieser Seite selbst verantwortlich. Die Angaben werden von der Architektenkammer Thüringen nicht geprüft.