Neubau eines Wohnhaus · Sondershausen
10 Projektbilder
-
Ansicht Damaschkestraße, Bild: Tobias Winkler -
Eingangsbereich Wohnhaus, Bild: Tobias Winkler -
West- und Ostansicht Wohnhaus, Bild: Tobias Winkler -
Gebäudeschnitte Wohnhaus, Bild: Tobias Winkler -
Nord- und Südansicht Wohnhaus, Bild: Tobias Winkler -
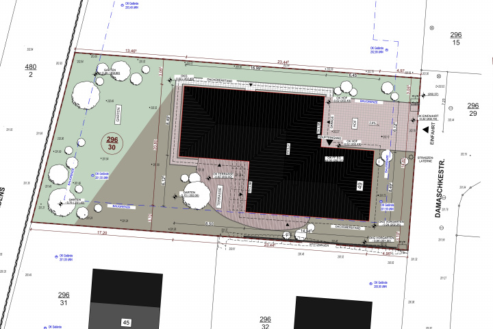
Lageplan Wohnhaus, Bild: Tobias Winkler -
Ansicht Ost Wohnhaus, Bild: Tobias Winkler -
Ansicht West - Straßenseite, Bild: Tobias Winkler -
Hofansicht mit Eingang, Bild: Tobias Winkler -
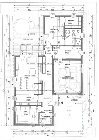
Grundriss Erdgeschoss, Bild: Tobias Winkler
Projektbeschreibung
Auf einem Hanggrundstück am nordöstlichen Stadtrand von Sondershausen entstand für ein Ehepaar ein modernes eingeschossiges Einfamilienwohnhausmit angrenzender Doppelgarage. Realisiert wurde für die Bauherren ein großzügiges und barrierefreies Raumkonzept mit einer direkten Verbindung vom Wohnhaus zur Garage.
Ausgeführt wurde das Wohnhaus in zeitgemäßer und moderner Architektur. Die Bereiche Garage und Wohnhaus bilden gestalterisch eine Einheit. Durch die einzelnen optisch abgesetzten Fensterbänder an den Fassaden wird die Baumasse von der Wirkung her reduziert und aufgelockert. Wesentlich für die Gebäudegestaltung ist die großflächige Wohnzimmerverglasung mit unmittelbarem Zugang zur Terrasse an der Westseite.
Projektdaten
Adresse
Damaschkestraße 49
99706 Sondershausen
Planungsbüro
Architekturbüro Tobias Winkler, Nordhausen
Bauherr
privat
Fertigstellung
Januar 2020
Nutzfläche
208 m2
An dieser Stelle wird eine Google-Maps-Karte angezeigt, wenn Sie das Speichern der entsprechenden Cookies erlaubt haben. Dies können Sie über die Privatsphäre-Einstellungen jederzeit tun.
Zugeordnete Schlagworte und Sammlungen
Weitere Projekte des gleichen Büros (34)
-
Umbau und Erweiterung eines Kindergartens
Sondershausen
Alexander-Puschkin-Promenade 22, 99706 Sondershausen
Architekturbüro Tobias Winkler, Nordhausen
Tag der Architektur 2026
Samstag, 27.06.2026 – geöffnet 10:00-12:00, Führungen 10:00, 11:00 (Treffpunkt: Eingang)
-
Aufstockung eines Parkhauses mit Ferienhäuser
Nordhausen
Friedrichstraße 11a, 99734 Nordhausen
Architekturbüro Tobias Winkler, Nordhausen
Tag der Architektur 2026
Samstag, 27.06.2026 – geöffnet 14:00-16:00, Führungen 14:00, 15:00 (Treffpunkt: Eingang Hotel)
-
Erweiterung Seniorenzentrum „Glück Auf“
Bleicherode
Gartenstraße 4, 99752 Bleicherode
Architekturbüro Tobias Winkler, Nordhausen
-
Sanierung und Erweiterung Feuerwehr-Gerätehaus
Nordhausen
Schafgasse 1, 99734 Nordhausen OT Petersdorf
Architekturbüro Tobias Winkler, Nordhausen
-
Umnutzung und Umbau der ehemaligen Stadtbibliothek zu einem Kindergarten
Sondershausen
Schlosspark 19, 99706 Sondershausen
Architekturbüro Tobias Winkler, Nordhausen
-
Umnutzung und Sanierung eines gewerblichen Hallenkomplexes
Nordhausen
Rathsfelder Straße 6, 99734 Nordhausen
Architekturbüro Tobias Winkler, Nordhausen
-
Neubau einer Freilichtbühne
Nordhausen
Günzeröder Straße 24, 99734 Nordhausen OT Hochstedt
Architekturbüro Tobias Winkler, Nordhausen
-
Neubau eines Wohnhauses
Werther
Große Lehne 1a, 99735 Werther
Architekturbüro Tobias Winkler, Nordhausen
-
Kindergarten Brummkreisel - Neugestaltung von Fassade und Außenanlagen
Nordhausen
Schumannstraße 44, 99734 Nordhausen
Architekturbüro Tobias Winkler, Nordhausen
-
Umbau und Umnutzung der Post Heiligenstadt
Heiligenstadt
Petristraße 20, 37308 Heiligenstadt
Architekturbüro Tobias Winkler, Nordhausen
-
Neubau des Kindergartens "Gartenkinder"
Bleicherode
Gartenstraße 5, 99752 Bleicherode
Architekturbüro Tobias Winkler, Nordhausen
-
Umnutzung und Umbau des Hochhauses am Grimmelhof
Nordhausen
Grimmelallee 4, 99734 Nordhausen
Architekturbüro Tobias Winkler, Nordhausen
-
Umnutzung und Umbau der "Alten Post" zu einer Wohnanlage
Nordhausen
Dr.-Külz-Straße 7, 99734 Nordhausen
Architekturbüro Tobias Winkler, Nordhausen
-
Neubau eines Mehrfamilien-Wohnhauses
Nordhausen
Altendorf 30, 99734 Nordhausen
Architekturbüro Tobias Winkler, Nordhausen
-
Neugestaltung Foyer der SWG mbH Nordhausen
Nordhausen
Geseniusstraße 3, 99734 Nordhausen
Architekturbüro Tobias Winkler, Nordhausen
-
Sanierung Wohn- und Geschäftshaus
Nordhausen
Hesseröder Straße 25, 99734 Nordhausen
Architekturbüro Tobias Winkler, Nordhausen
-
Erweiterung Werkhalle
Heringen
Nordhäuser Straße 2, 99765 Heringen
Architekturbüro Tobias Winkler, Nordhausen
-
Sanierung / Modernisierung eines Wohn- und Geschäftshauses
Nordhausen
Ebertplatz 4, 99734 Nordhausen
Architekturbüro Tobias Winkler, Nordhausen
-
Neubau eines Mehrfamilien-Wohnhauses
Nordhausen
Rosengasse, 99734 Nordhausen
Architekturbüro Tobias Winkler, Nordhausen
-
Neubau einer Produktionshalle
Werther
Am Mühlweg 5, 99735 Werther
Architekturbüro Tobias Winkler, Nordhausen
-
Neubau eines Wohnhauses
Nordhausen
Schwalbenweg 18, 99734 Nordhausen
Architekturbüro Tobias Winkler, Nordhausen
-
Energetische Sanierung Gebäude 20
Nordhausen
Weinberghof 4, 99734 Nordhausen
Architekturbüro Tobias Winkler, Nordhausen
-
Neubau eines Wohnhauses
Neustadt
Osteröder Straße 17 , 99762 Neustadt
Architekturbüro Tobias Winkler, Nordhausen
-
Revitalisierung einer Produktionshalle mit Neubau eines Bürogebäudes
Nordhausen
Lokomotivenstraße 25, 99734 Nordhausen
Architekturbüro Tobias Winkler, Nordhausen
-
Wohnen am Fluss - Neubau einer Wohnanlage
Nordhausen
Van-der-Foehr-Damm 16 b, 99734 Nordhausen
Architekturbüro Tobias Winkler, Nordhausen
-
Neubau Seniorenzentrum "Glück Auf" in Bleicherode
Bleicherode
Gartenstraße 4, 99752 Bleicherode
Architekturbüro Tobias Winkler, Nordhausen
-
Neubau eines Wohnhauses mit Doppelgarage
Nordhausen
Heidelbergblick 41, 99734 Nordhausen
Architekturbüro Tobias Winkler, Nordhausen
-
Neubau eines Jugendgästehauses
Nordhausen
Parkallee 2, 99734 Nordhausen
Architekturbüro Tobias Winkler, Nordhausen
-
Neubau eines Einfamilien-Wohnhauses
Nordhausen
Heidelbergblick 41, 99734 Nordhausen
Architekturbüro Tobias Winkler, Nordhausen
-
Neubau eines Einfamilien-Wohnhauses
Nordhausen
Gartenstraße 11, 99734 Nordhausen OT Herreden
Architekturbüro Tobias Winkler, Nordhausen
-
-
Grundsanierung Gebäude 34
Nordhausen
Weinberghof 4, 99734 Nordhausen
Architekturbüro Tobias Winkler, Nordhausen
-
Modernisierung Wohnhaus mit Neubau eines Wintergartens
Lipprechterode
Krajaer Straße 163, 99752 Lipprechterode
Architekturbüro Tobias Winkler, Nordhausen
-
Sanierung und Modernisierung von Mehrfamilien-Wohnhäusern
Bleicherode
Danielstraße 4 - 7 und Burgstraße 52, 99752 Bleicherode
Architekturbüro Tobias Winkler, Nordhausen
Letzte Aktualisierung dieser Seite am: 10.05.2022. Alle Angaben auf dieser Seite werden durch das Büro Architekturbüro Tobias Winkler, Nordhausen auf freiwilliger Basis verwaltet. Das Büro ist für den Inhalt dieser Seite selbst verantwortlich. Die Angaben werden von der Architektenkammer Thüringen nicht geprüft.