Forum Wissen Göttingen
7 Projektbilder
-
Forum Wissen Göttingen Foyer, Bild: gildehaus.partner -
Forum Wissen Göttingen Barrierefreier Eingang, Bild: gildehaus.partner -
Forum Wissen Göttingen Fassade Haupteingang, Bild: gildehaus.partner -
Forum Wissen Göttingen Atrium, Bild: gildehaus.partner -
Forum Wissen Göttingen Ausstellungsbereich, Bild: gildehaus.partner -
Forum Wissen Göttingen Neubau, Bild: gildehaus.partner -
Forum Wissen, Bild: gildehauspartner
Projektbeschreibung
Das Projekt FORUM WISSEN der Universität Göttingen folgt der Leitidee „Wissen schaffen“ in Form einer Ausstellung. Das ehemalige Naturhistorische Museum öffnet sich dabei programmatisch in zwei Richtungen: in die Öffentlichkeit und in die Wissenschaft.
Dafür greift es auf die umfangreichen Sammlungsbestände der Universität zurück, deren Objekte im FORUM WISSEN nicht nur gezeigt, sondern auch gelagert, restauriert und damit für die Zukunft bewahrt werden sollen.
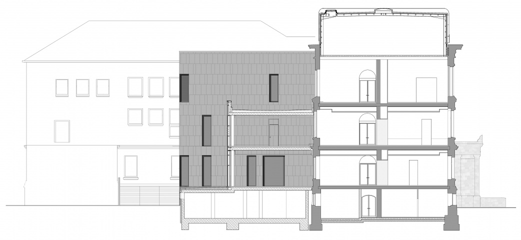
Das ehemalige Naturhistorische Museum Göttingen, erbaut 1877, wurde mehrfach überformt, erweitert und zuletzt als Institutsgebäude genutzt.
Mit der Nutzung des FORUM WISSEN erhält das Gebäude seine ursprüngliche Bestimmung als Museum zurück. Im Kernbau von 1877 werden die ehemaligen Ausstellungs-räume wiederhergestellt. Gläserne Neubauten auf einem massiven Sockel ergänzen den Bestand (siehe Schnittzeichnung). Die Basisausstellung des Museums wird vom Erdgeschoss bis zum 1.Obergeschoss gezeigt, das 2.Obergeschoss bietet Sonderausstellungsflächen, Platz für die Zoologische Sammlung und Raum für weitere wechselnde Ausstellungen der Fakultäten.
Zur Berliner Straße hin befinden sich im Erdgeschoss der barrierefreie Besuchereingang mit Aufzug, ein Foyer, ein großzügiges Atrium mit Café und Nebenflächen.
Hier ist das Highlight des Museums, ein Walskelett, zu sehen. Im Sockelgeschoss sind Depots und Klimatechnik unter-gebracht, sowie Werkstätten für Restaurierung, Präparation der Objekte und Ausstellungsvorbereitung.
Das 1.Obergeschoss bietet Raum für Forschungs-arbeitsplätze, unter dem neuen Dach ist die Lüftungs- und Klimatechnik installiert.
Die Sanierung erfolgte nach neustem Erkenntnisstand (elektronisch schaltbare Gläser, optimale Lüftungs- und Klimatechnik kombiniert mit Lehmputz) und versucht den sensiblen Austellungsobjekten gerecht zu werden.
Projektdaten
Adresse
Berliner Strasse 28
37073 Göttingen
Planungsbüros
gildehaus.partner architekten mbB, Weimar
Architekturbüro Alexander Pfohl BDA, Weimar
Bauherr
Georg-August-Universität Göttingen
Fertigstellung
Mai 2022
Nutzfläche
4.700 m2
An dieser Stelle wird eine Google-Maps-Karte angezeigt, wenn Sie das Speichern der entsprechenden Cookies erlaubt haben. Dies können Sie über die Privatsphäre-Einstellungen jederzeit tun.
Zugeordnete Schlagworte und Sammlungen
Weitere Projekte des gleichen Büros (17)
-
Historisches Rathaus Weimar
Weimar
Markt 1, 99423 Weimar
gildehaus.partner architekten mbB, Weimar
Architekturbüro Dr. Lutz Krause + Alexander Pfohl GbR, Weimar | atelier freiraum, Weimar | roots landschaftsarchitekten PartGmbB, Weimar -
Landesschule Pforta "Alte Mühle"
Naumburg
Landesschule Pforta Schulstraße 12, 06628 Naumburg
gildehaus.partner architekten mbB, Weimar
Architekturbüro Alexander Pfohl BDA, Weimar -
Jenaplanschule Erfurt
Erfurt
Gert-Schramm-Str. 1, 99089 Erfurt
gildehaus.partner architekten mbB, Weimar
-
Neues Stadtarchiv Amberg
Amberg
Paulanerplatz 17, 92224 Amberg
gildehaus.partner architekten mbB, Weimar
-
Amtsgericht Rudolstadt
Rudolstadt
Marktstraße 54, 07407 Rudolstadt
gildehaus.partner architekten mbB, Weimar
Architekturbüro Alexander Pfohl BDA, Weimar -
Schutzbau für die mittelalterliche Mikwe in Erfurt
Erfurt
Am Kreuzsand, 99084 Erfurt
gildehaus.partner architekten mbB, Weimar
gildehaus.reich architekten BDA, Weimar | PSL Landschaftsarchitekten Ziegenrücker. Dorlas. Partnerschaftsgesellschaft mbB, Erfurt -
Gymnasium "Am Weißen Turm" Pößneck
Pößneck
Am Schulplatz 1, 07381 Pößneck
gildehaus.partner architekten mbB, Weimar
gildehaus.reich architekten BDA, Weimar -
Feuerwache Jena-Göschwitz
Jena
Rudolstädter Str. 95, 07745 Jena
gildehaus.partner architekten mbB, Weimar
-
Goethe- und Schiller-Archiv Weimar
Weimar
Jenaer Straße 1, 99425 Weimar
arge gs / archiv - Architekturbüro Dr. Lutz Krause / gildehaus.reich architekten BDA, Weimar
stock landschaftsarchitekten bdla, Jena -
Am Schießhaus
Weimar
Am Schießhaus, 99423 Weimar
gildehaus.reich architekten BDA, Weimar
gildehaus.partner architekten mbB, Weimar | Planungsbüro Rau - Landschaftsarchitektur, Weimar -
DAV Kletterhalle Weimar
Weimar
Kromsdorfer Straße 11, 99427 Weimar
gildehaus.partner architekten mbB, Weimar
-
Wohnhäuser am Schießhaus
Weimar
Am Schießhaus, 99423 Weimar
gildehaus.partner architekten mbB, Weimar
gildehaus.reich architekten BDA, Weimar -
Freifläche Gymnasium "Am Weißen Turm" Pößneck
Pößneck
Am Schulplatz 1, 07381 Pößneck
gildehaus.partner architekten mbB, Weimar
-
Herderzentrum Weimar
Weimar
Herderplatz 6/7, 99423 Weimar
gildehaus.partner architekten mbB, Weimar
gildehaus.reich architekten BDA, Weimar -
Schloss Ettersburg, Weimar UNESCO-Weltkulturerbe
Ettersburg
Am Schloss 1, 99439 Ettersburg
gildehaus.partner architekten mbB, Weimar
gildehaus.reich architekten BDA, Weimar | Architekturbüro Alexander Pfohl BDA, Weimar -
Zivilschutzzentrum Meran
Meran (Bozen)
St.-Florian-Straße 13, 39012 Meran (Bozen)
gildehaus.partner architekten mbB, Weimar
gildehaus.reich architekten BDA, Weimar -
Sanierung und Erweiterung Domstraße 12 in Merseburg
Merseburg (Saale)
Domstraße 12, 06217 Merseburg (Saale)
gildehaus.partner architekten mbB, Weimar
gildehaus.reich architekten BDA, Weimar
Letzte Aktualisierung dieser Seite am: 13.06.2024. Alle Angaben auf dieser Seite werden durch das Büro gildehaus.partner architekten mbB, Weimar auf freiwilliger Basis verwaltet. Das Büro ist für den Inhalt dieser Seite selbst verantwortlich. Die Angaben werden von der Architektenkammer Thüringen nicht geprüft.