Sanierung des Studierendenwohnhauses Jakobsplan 1 in Weimar
Junk & Reich, Architekten BDA Planungsgesellschaft mbH, Weimar
25 Projektbilder
-
Fassadendetail, Bild: Falko Bormann -
Detail Giebelfassade, Bild: Falko Bormann -
Fassade des neuen Treppenhauses, Bild: Falko Bormann -
neues Treppenhaus, Bild: Falko Bormann -
Einzelzimmer, Bild: Falko Bormann -
Gemeinschaftsbereich einer Wohngruppe, Bild: Falko Bormann -
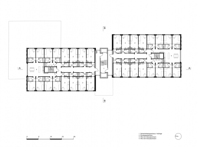
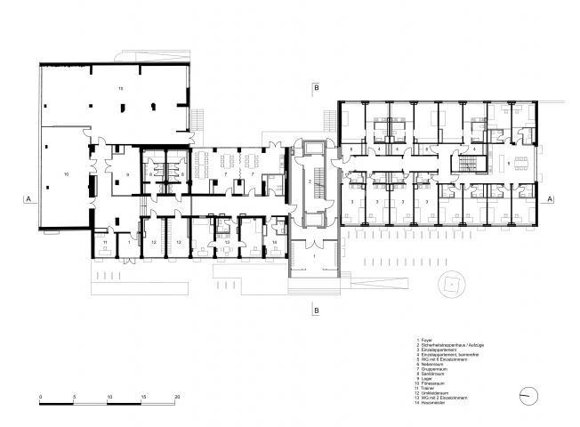
Grundriss EG, Bild: Klaus Reich -
Grundriss Regelgeschoss, Bild: Klaus Reich -
Schnitt A-A, Bild: Klaus Reich -
Schnitt B-B, Bild: Klaus Reich -
Ansicht West, Bild: Klaus Reich -
Ansicht Nord, Bild: Klaus Reich -
Abbruch der Wetterschale der Fassadenplatten, Bild: Klaus Reich -
Abrüsten des sanierten Nordgiebels, Bild: Klaus Reich -
Zimmer im Rohbauzustand, Bild: Klaus Reich -
Behebung alter Baumängel, Bild: Klaus Reich -
Durchbruch des neuen Flurs durch den Gebäudekern (rechts), Bild: Klaus Reich -
Neue Türöffnungen werden gesägt., Bild: Klaus Reich -
kreative Logistik, Bild: Klaus Reich -
Bauschutt - Menge und Masse!, Bild: Klaus Reich -
Die Baustelle - eng und ordentlich., Bild: Klaus Reich -
Abbruch des Bestandstreppenhauses, Bild: Klaus Reich -
Neubau des Sicherheitstreppenhauses, Bild: Klaus Reich -
Im Rohbau des Sicherheitstreppenhauses., Bild: Klaus Reich -
Westansicht nach der Sanierung, Bild: Falko Bormann
Projektbeschreibung
Das Studierendenwohnhaus am Jakobsplan – auch „Langer Jakob“ genannt – wurde 1972 in Plattenbauweise errichtet. Im Zuge der Sanierungsarbeiten wurden erhebliche Mängel aus der Errichterzeit aufgedeckt, die mit hohem Aufwand behoben werden mussten. Die Neugestaltung erfolgte als Bekenntnis zur Moderne der 70er Jahre. Aus Brandschutzgründen wurde das zentrale Treppenhaus neu aufgeführt. Es erscheint als transparente Fuge zwischen den Wohntürmen und verschafft dem Gebäude elegante Proportionen. Die Plattenstruktur der Fassade wurde in der neuen Vorhangfassade zitiert. Die charakteristische „Waffeleisenstruktur“ der Giebel blieb im Original erhalten. Ursprünglich für ca. 1.000 Studenten errichtet bietet das Studierendenwohnhaus heute 349 Wohnheimplätze, größtenteils in Einzelappartements.
Projektdaten
Adresse
Jakobsplan 1
99423 Weimar
Planungsbüros
Junk & Reich, Architekten BDA Planungsgesellschaft mbH, Weimar
Hartmann + Helm Planungsgesellschaft mbH, Weimar
DANE Landschaftsarchitektur, Weimar
Bauherr
Studierendenwerk Thüringen A. d. ö. R.
Fertigstellung
März 2021
Nutzfläche
9423 m2
An dieser Stelle wird eine Google-Maps-Karte angezeigt, wenn Sie das Speichern der entsprechenden Cookies erlaubt haben. Dies können Sie über die Privatsphäre-Einstellungen jederzeit tun.
Zugeordnete Schlagworte und Sammlungen
Weitere Projekte des gleichen Büros (41)
-
Neubau Firmengebäude Tontopf e. K. / Buttonorder
Lautertal
Reutersgasse 7, 96486 Lautertal
Junk & Reich, Architekten BDA Planungsgesellschaft mbH, Weimar
-
Denkmalgerechte Instandsetzung Schulstandort Pasteurstraße, Berlin-Pankow
Berlin
Pasteurstraße 7-11, 10407 Berlin OT Pankow
Junk & Reich, Architekten BDA Planungsgesellschaft mbH, Weimar
Lützow 7 Müller Wehberg Landschaftsarchitekten PartG mbB, Berlin
-
Sanierung und Umbau eines Werkskantinengebäudes zur Dampflok Erlebniswelt Meiningen
Meiningen
Am Flutgraben 2a, 98617 Meiningen
Junk & Reich, Architekten BDA Planungsgesellschaft mbH, Weimar
Planungsbüro Rau - Landschaftsarchitektur, Weimar | jangled nerves gmbh, Stuttgart
-
Neubau Betriebskindergarten "Gipfelstürmer"
Weimar
Straße des 17. Juni 5a, 99427 Weimar
Junk & Reich, Architekten BDA Planungsgesellschaft mbH, Weimar
-
Tor zur Stadt - Neues Wohnen am Riebeckplatz
Halle / Saale
Dorotheenstraße 7 / Obere Leipziger Straße, 06108 Halle / Saale
Junk & Reich, Architekten BDA Planungsgesellschaft mbH, Weimar
-
Museum Zwangsarbeit im Nationalsozialismus
Weimar
Jorge-Semprún-Platz 2, 99423 Weimar
Junk & Reich, Architekten BDA Planungsgesellschaft mbH, Weimar
Hartmann + Helm Planungsgesellschaft mbH, Weimar | gewerkdesign GmbH + Co. KG, Berlin
-
Umbau Mehrzweckgebäude
Weimar
Friedensstraße 42, 99423 Weimar
Junk & Reich, Architekten BDA Planungsgesellschaft mbH, Weimar
-
Erweiterungsneubau des Deutschen Spielzeugmuseums Sonneberg
Sonneberg
Beethovenstraße 10/12, 96515 Sonneberg
Junk & Reich, Architekten BDA Planungsgesellschaft mbH, Weimar
-
Neubau Wohnquartier „Wohnen am Bürgerpark / Johannesplatz“
Erfurt
Friedrich-Engels-Straße 34 & 35, 99086 Erfurt OT Johannesplatz
Junk & Reich, Architekten BDA Planungsgesellschaft mbH, Weimar
Heinisch Landschaftsarchitekten, Weimar | Fischer Planungsgesellschaft Weimar mbH, Weimar
-
Deutsches Spielzeugmuseum Sonneberg, 2. Bauabschnitt
Sonneberg
Beethovenstraße 10/12, 96515 Sonneberg
Junk & Reich, Architekten BDA Planungsgesellschaft mbH, Weimar
-
Ernst-Abbe-Gymnasium Jena, Sanierung / Umbau Schulgebäude und Sporthalle, Neubau Aula
Jena
Ammerbacher Straße 21, 07745 Jena
Arge Junk & Reich / Hartmann + Helm, Weimar
Heinisch Landschaftsarchitekten, Weimar
-
Neubau Wohnanlage Friedensbergterrassen Jena
Jena
Friedrich-Schelling-Straße, 07745 Jena OT West
Junk & Reich, Architekten BDA Planungsgesellschaft mbH, Weimar
stock landschaftsarchitekten bdla, Jena
-
Neubau Hauptverwaltung der Städtischen Werke Magdeburg
Magdeburg
Breiter Weg 128, 39104 Magdeburg
Junk & Reich, Architekten BDA Planungsgesellschaft mbH, Weimar
DANE Landschaftsarchitektur, Weimar
-
Wiederaufbau der historischen Bibliothek am Augustinerkloster Erfurt
Erfurt
Augustinerstraße 10, 99084 Erfurt
Junk & Reich, Architekten BDA Planungsgesellschaft mbH, Weimar
-
Wohn- und Geschäftshaus Creuzburg
Weimar
Döbereiner Straße 27, 99427 Weimar
Junk & Reich, Architekten BDA Planungsgesellschaft mbH, Weimar
-
Generalsanierung der Schulanlage der Staatlichen Berufsschulen II und III in Bamberg
Bamberg
Dr.-von-Schmitt-Straße 12, 96050 Bamberg
Junk & Reich, Architekten BDA Planungsgesellschaft mbH, Weimar
Architekturbüro Sieben, Bamberg | Ingenieurbüro Sauer + Harrer, Strullendorf
-
Modernisierung / Erweiterung Bundessozialgericht Kassel
Kassel
Graf-Bernadotte-Platz 5, 34119 Kassel
Junk & Reich, Architekten BDA Planungsgesellschaft mbH, Weimar
Hartmann + Helm Planungsgesellschaft mbH, Weimar | DANE Landschaftsarchitektur, Weimar
-
Neubau Wohngebiet Peter-Vischer-Weg und Umbau ehemaliges Hauptzollamt
Erfurt
Peter-Vischer-Weg 18, 99099 Erfurt
Junk & Reich, Architekten BDA Planungsgesellschaft mbH, Weimar
Planungsbüro Rau - Landschaftsarchitektur, Weimar
-
Neubau Südflügel Schloss Wittenberg
Lutherstadt Wittenberg
Schlossplatz 1, 06886 Lutherstadt Wittenberg
Junk & Reich, Architekten BDA Planungsgesellschaft mbH, Weimar
-
Förderzentrum Sprachheilschule „Käthe Kollwitz“
Leipzig
Karl-Vogel-Straße 17/19, 04318 Leipzig
Junk & Reich, Architekten BDA Planungsgesellschaft mbH, Weimar
Hartmann + Helm Planungsgesellschaft mbH, Weimar
-
Sanierung und Erweiterung des Schulkomplexes der 89. Grundschule Dresden
Dresden
Sosaer Straße 10, 01257 Dresden OT Niedersedlitz
Junk & Reich, Architekten BDA Planungsgesellschaft mbH, Weimar
Hartmann + Helm Planungsgesellschaft mbH, Weimar
-
62. Oberschule "Friedrich Schiller" Dresden-Loschwitz
Dresden
Fidelio-F.-Finke-Straße 15, 01326 Dresden OT Loschwitz
Junk & Reich, Architekten BDA Planungsgesellschaft mbH, Weimar
Hartmann + Helm Planungsgesellschaft mbH, Weimar
-
Institut Metallformung / Gießereitechnik der TU Bergakademie Freiberg
Freiberg
Bernhard-von-Cotta-Straße 4, 09559 Freiberg
Junk & Reich, Architekten BDA Planungsgesellschaft mbH, Weimar
Hartmann + Helm Planungsgesellschaft mbH, Weimar
-
Sanierung und Erweiterungsneubauten Romain-Rolland-Gymnasium Dresden
Dresden
Weintraubenstraße 3, 01099 Dresden
Junk & Reich, Architekten BDA Planungsgesellschaft mbH, Weimar
Planungsbüro Rau - Landschaftsarchitektur, Weimar | Hartmann + Helm Planungsgesellschaft mbH, Weimar
-
Um- und Erweiterungsbauten Gymnasium Bühlau
Dresden
Quohrener Straße 12, 01324 Dresden
Junk & Reich, Architekten BDA Planungsgesellschaft mbH, Weimar
Hartmann + Helm Planungsgesellschaft mbH, Weimar
-
Generalsanierung der Grund- und Hauptschule Ochsenfurt & Dreifeldsporthalle
Ochsenfurt
Fabrikstraße 1, 97199 Ochsenfurt
Junk & Reich, Architekten BDA Planungsgesellschaft mbH, Weimar
Planungsbüro Rau - Landschaftsarchitektur, Weimar | Hartmann + Helm Planungsgesellschaft mbH, Weimar
-
Campus Technicus Bernburg (Saale) - Modernisierung / Erweiterung historischer Schulgebäude und Neubau einer Zweifeldsporthalle
Bernburg
Leipziger Straße 4 / Schlossstraße / Käthe-Kollwitz-Straße 12-14, 06406 Bernburg
Junk & Reich, Architekten BDA Planungsgesellschaft mbH, Weimar
Planungsbüro Rau - Landschaftsarchitektur, Weimar | Hartmann + Helm Planungsgesellschaft mbH, Weimar
-
Neubau Wohn- und Geschäftsareal Willy-Brandt-Höfe Erfurt
Erfurt
Willy-Brandt-Platz 5, 99084 Erfurt
Junk & Reich, Architekten BDA Planungsgesellschaft mbH, Weimar
Planungsbüro Rau - Landschaftsarchitektur, Weimar
-
Neubau einer multifunktional nutzbaren Dreifeldsporthalle in Apolda
Apolda
Adolf-Aber-Straße, 99510 Apolda OT -
Junk & Reich, Architekten BDA Planungsgesellschaft mbH, Weimar
Hartmann + Helm Planungsgesellschaft mbH, Weimar | Helk Architekten und Ingenieure GmbH, Mellingen
-
Neubau Parkdeck am Mehrzweckgebäude
Weimar
Friedensstraße 42, 99423 Weimar
Junk & Reich, Architekten BDA Planungsgesellschaft mbH, Weimar
-
Umbau und Erweiterung des Verwaltungsgebäudes der jenawohnen GmbH
Jena
Löbdergrabe 18 / 19, 07743 Jena
Junk & Reich, Architekten BDA Planungsgesellschaft mbH, Weimar
stock landschaftsarchitekten, Jena
-
Ersatzneubau einer erweiterten Zwei-Feld-Sporthalle, Bad Berka
Bad Berka
Bergstraße 9, 99438 Bad Berka OT Bad Berka
Junk & Reich, Architekten BDA Planungsgesellschaft mbH, Weimar
Planungsbüro Rau - Landschaftsarchitektur, Weimar
-
Grundsanierung Van de Velde-Bau
Weimar
Geschwister-Scholl-Straße 7, 99423 Weimar
Junk & Reich, Architekten BDA Planungsgesellschaft mbH, Weimar
-
Erweiterung Glatt Ingenieurtechnik GmbH
Weimar
Nordstraße 12, 99427 Weimar
Junk & Reich, Architekten BDA Planungsgesellschaft mbH, Weimar
Planungsbüro Rau - Landschaftsarchitektur, Weimar
-
Wohnanlage „Stadtblick“
Weimar
Heinrich-Jäde-Straße 30/32, 99425 Weimar
Junk & Reich, Architekten BDA Planungsgesellschaft mbH, Weimar
-
Christophorus-Schule
Erfurt
Spittelgartenstraße 1, 99089 Erfurt
Junk & Reich, Architekten BDA Planungsgesellschaft mbH, Weimar
-
Pfarrhaus der Katholischen Kirchgemeinde Weimar
Weimar
Paul-Schneider-Straße, 99423 Weimar
Junk & Reich, Architekten BDA Planungsgesellschaft mbH, Weimar
-
Marie-Curie-Gymnasium
Bad Berka
Bergstraße 9, 99438 Bad Berka
Junk & Reich, Architekten BDA Planungsgesellschaft mbH, Weimar
Architekturbüro Stadermann - Architekten BDA, Niederorschel
-
Förderschule Rastenberg
Rastenberg
Herrenstraße 34, 99636 Rastenberg
Junk & Reich, Architekten BDA Planungsgesellschaft mbH, Weimar
-
Diakoniekrankenhaus Halle (3. Bauabschnitt)
Halle (Saale)
Lafontainestraße 15, 06114 Halle (Saale)
Junk & Reich, Architekten BDA Planungsgesellschaft mbH, Weimar
-
Erweiterungsbau Robert-Koch-Krankenhaus Apolda
Apolda
Jenaer Straße 66, 99510 Apolda
Junk & Reich, Architekten BDA Planungsgesellschaft mbH, Weimar
Letzte Aktualisierung dieser Seite am: 11.03.2024. Alle Angaben auf dieser Seite werden durch das Büro Junk & Reich, Architekten BDA Planungsgesellschaft mbH, Weimar auf freiwilliger Basis verwaltet. Das Büro ist für den Inhalt dieser Seite selbst verantwortlich. Die Angaben werden von der Architektenkammer Thüringen nicht geprüft.