Sanierung Gymnasium 10 · Erfurt
6 Projektbilder
Projektbeschreibung
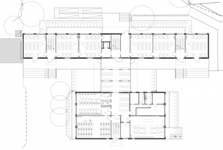
Die am kleinen Herrenberg befindliche, 1980 errichtete Plattenbauschule des Typs „Erfurt TS 75“, befand sich außer Nutzung und wurde zu einem 2-zügigen Gymnasium umgebaut und saniert.
Das Gebäude wurde gemäß Nutzungsanforderungen neu gegliedert. Die Aufteilung des Gebäudes in Klassen-, Verbinder- und Fachklassentrakt bleibt dabei erhalten. Im Untergeschoss des Klassentrakts befinden sich Lager, Bibliotheks- und Kunsträume. Die Klassenräume erstrecken sich vom Erdgeschoss bis zum dritten Obergeschoss. Die Verwaltung befindet sich im 1. Obergeschoss, die Aula verbleibt im 3. Obergeschoss. Das Untergeschoss des Fachklassentrakts wird für Speiseräume und Küche genutzt.
Alle Fassaden wurden farblich neu gestaltet. Ziel war hier die vorgegebene Stringenz zu nutzen, um einen gewebeartigen Effekt an den Längsseiten zu erzielen. Auch der Bereich des Verbinders wurde komplett neu gestaltet. Das Erdgeschoss wurde mittels Verglasung maximal zu den Seitenhöfen geöffnet. Hier befindet sich auch die ebenerdig gestaltete Anbindung an alle Treppenhäuser. Mittels Sitzstufen wurden hier Rückzugsbereiche realisiert. Durch eine Rampe am Haupteingang und einen neu eingebauten Aufzug ist die Schule jetzt schwellenlos zu nutzen.
Projektdaten
Adresse
Scharnhorststraße 43
99099 Erfurt
Planungsbüros
HOFFMANN.SEIFERT.PARTNER architekten und ingenieure, Erfurt
Büro für Landschaftsarchitektur Regina Schmalz, Erfurt
Bauherr
Stadtverwaltung Erfurt
Fertigstellung
Januar 2018
Nutzfläche
2784 m2
An dieser Stelle wird eine Google-Maps-Karte angezeigt, wenn Sie das Speichern der entsprechenden Cookies erlaubt haben. Dies können Sie über die Privatsphäre-Einstellungen jederzeit tun.
Zugeordnete Schlagworte und Sammlungen
Weitere Projekte des gleichen Büros (30)
-
Generalsanierung Grundschule am Wiesenhügel
Erfurt
Weißdornweg 2, 99097 Erfurt
HOFFMANN.SEIFERT.PARTNER architekten und ingenieure, Suhl
Schley + Partner Landschaftsarchitektur Urbanistik, ErfurtTag der Architektur 2026
Sonntag, 28.06.2026 – geöffnet 10:00-12:00, Führungen 10:00, 11:00 (Treffpunkt: Haupteingang Südseite)
-
Um- und Neugestaltung der Rennrodelbahn Oberhof
Oberhof
Tambacher Straße, 98559 Oberhof
HOFFMANN.SEIFERT.PARTNER architekten und ingenieure, Suhl
Ingenieurbüro Trabert + Partner, Geisa
-
Sanierung Hörsaalgebäude Hochschule Nordhausen
Nordhausen
Weinberghof 4, 99734 Nordhausen
HOFFMANN.SEIFERT.PARTNER architekten und ingenieure, Suhl
-
Neubau IT-Dienstleistungszentrum der TU Ilmenau
Ilmenau
Helmholzplatz 7, 98693 Ilmenau
HOFFMANN.SEIFERT.PARTNER architekten und ingenieure, Suhl
freiraumpioniere | landschaftsarchitekten, Weimar
-
Generalsanierung Schulsporthalle
Erfurt
Scharnhorststraße 41a, 99099 Erfurt
HOFFMANN.SEIFERT.PARTNER architekten und ingenieure, Erfurt
Büro für Landschaftsarchitektur Regina Schmalz, Erfurt
-
Energetische Sanierung Bukarester Straße
Erfurt
Bukarester Sraße 5 - 49, 99091 Erfurt
HOFFMANN.SEIFERT.PARTNER architekten und ingenieure, Erfurt
-
Neubau Vogtlandhalle
Greiz
Carolinenstraße 15, 07973 Greiz
HOFFMANN.SEIFERT.PARTNER architekten und ingenieure, Suhl
plandrei Dittrich + Luz GbR, Erfurt
-
Erweiterung Schulzentrum
Frohburg
August-Bele-Straße 32, 04654 Frohburg
HOFFMANN.SEIFERT.PARTNER architekten und ingenieure, Erfurt
-
Neubau Mehrfamilienhaus Ringelberg 3
Erfurt
Walter-Gropius-Straße 74, 99085 Erfurt
HOFFMANN.SEIFERT.PARTNER architekten und ingenieure, Erfurt
-
Neubau Mehrfamilienhäuser Ringelberg 2
Erfurt
Walter-Gropius-Straße 33, 99085 Erfurt
HOFFMANN.SEIFERT.PARTNER architekten und ingenieure, Erfurt
-
Erweiterung/Teilsanierung Kindertagesstätte „Sonnenschein“
Buttstädt
Großemsener Weg 3, 99628 Buttstädt
HOFFMANN.SEIFERT.PARTNER architekten und ingenieure, Erfurt
Büro für Landschaftsarchitektur Regina Schmalz, Erfurt
-
Soziokulturelles Zentrum
Kölleda
Markt 25, 99625 Kölleda
HOFFMANN.SEIFERT.PARTNER architekten und ingenieure, Erfurt
-
Umbau Stadtteilzentrum Moskauer Straße
Erfurt
Moskauer Straße 114, 99091 Erfurt
HOFFMANN.SEIFERT.PARTNER architekten und ingenieure, Suhl
-
Neubau Bürogebäude am Dom
Erfurt
Peterstraße 3, 99084 Erfurt
HOFFMANN.SEIFERT.PARTNER architekten und ingenieure, Suhl
-
Neubau Mehrfamilienhaus Ringelberg 1
Erfurt
Walter-Gropius-Straße 56, 99085 Erfurt
HOFFMANN.SEIFERT.PARTNER architekten und ingenieure, Suhl
-
Neubau Mehrfamilienhaus Cottbus
Cottbus
Bahnhofstraße 37/38, Cottbus
HOFFMANN.SEIFERT.PARTNER architekten und ingenieure, Suhl
-
Neues Wohnen Fraureuth
Fraureuth
Fritz-Heckert-Ring, 08427 Fraureuth
HOFFMANN.SEIFERT.PARTNER architekten und ingenieure, Suhl
-
Sanierung „Haus zum Gelben Löwen“
Erfurt
Allerheiligenstraße 17, 99084 Erfurt
HOFFMANN.SEIFERT.PARTNER architekten und ingenieure, Suhl
-
Neubau Kita "Arche Noah"
Erfurt
Bukarester Straße 50, 99091 Erfurt OT Gispersleben
HOFFMANN.SEIFERT.PARTNER architekten und ingenieure, Suhl
A21 GbR architektur + kommunikation, Weimar
-
"Wohnument" - Umbau ehem. Frauenklinik
Erfurt
Melanchthonstraße 8-10, 99084 Erfurt
HOFFMANN.SEIFERT.PARTNER architekten und ingenieure, Suhl
Büro für Landschaftsarchitektur Regina Schmalz, Erfurt
-
Sanierung Sporthalle Riethschule
Erfurt
Riethstraße 28, 99089 Erfurt
HOFFMANN.SEIFERT.PARTNER architekten und ingenieure, Suhl
-
Neubau Sporthalle und Sanierung Grundschule
Geschwenda
Gutshof 19a, 98716 Geschwenda
HOFFMANN.SEIFERT.PARTNER architekten und ingenieure, Suhl
-
Ersatzneubau Schule zur Lernförderung
Pirna
Remscheider Straße 62 , 01796 Pirna
HOFFMANN.SEIFERT.PARTNER architekten und ingenieure, Suhl
-
Neubau piezosystem Jena
Jena
Stockholmer Straße, 07747 Jena
HOFFMANN.SEIFERT.PARTNER architekten und ingenieure, Suhl
-
Altenpflegeheim Ronneburg
Ronneburg
Markt 13/14, 07580 Ronneburg
HOFFMANN.SEIFERT.PARTNER architekten und ingenieure, Suhl
-
Neubau Feuerwache Erfurt-Waltersleben
Erfurt
Auf der Waidmühle 22, 99097 Erfurt OT Waltersleben
HOFFMANN.SEIFERT.PARTNER architekten und ingenieure, Suhl
Büro für Landschaftsarchitektur Regina Schmalz, Erfurt
-
Überdachung Rennschlittenbahn
Oberhof
Tambacher Straße, 98559 Oberhof
HOFFMANN.SEIFERT.PARTNER architekten und ingenieure, Suhl
-
Einhausung Anschubstrecke
Oberhof
Alte Ohrdrufer Straße, 98559 Oberhof
HOFFMANN.SEIFERT.PARTNER architekten und ingenieure, Suhl
-
Instandsetzung / Modernisierung Jakob-Kaiser-Ring
Erfurt
Jakob-Kaiser-Ring 14-54, 99087 Erfurt OT Roter Berg
HOFFMANN.SEIFERT.PARTNER architekten und ingenieure, Suhl
-
Neubau Kita und Wohnen Lauentor
Erfurt
Lauentor 5, 99084 Erfurt
HOFFMANN.SEIFERT.PARTNER architekten und ingenieure, Suhl
Letzte Aktualisierung dieser Seite am: 11.05.2021. Alle Angaben auf dieser Seite werden durch das Büro HOFFMANN.SEIFERT.PARTNER architekten und ingenieure, Erfurt auf freiwilliger Basis verwaltet. Das Büro ist für den Inhalt dieser Seite selbst verantwortlich. Die Angaben werden von der Architektenkammer Thüringen nicht geprüft.