Zum Seiteninhalt Logo der Architektenkammer Thüringen

Haus der Weimarer Republik in Weimar - Ergebnis

Offener Realisierungs- und Ideenwettbewerb

12 Bilder vergrößern
Ansicht Künstlerhof 1. Preis: Muffler Architekten, Tuttlingen

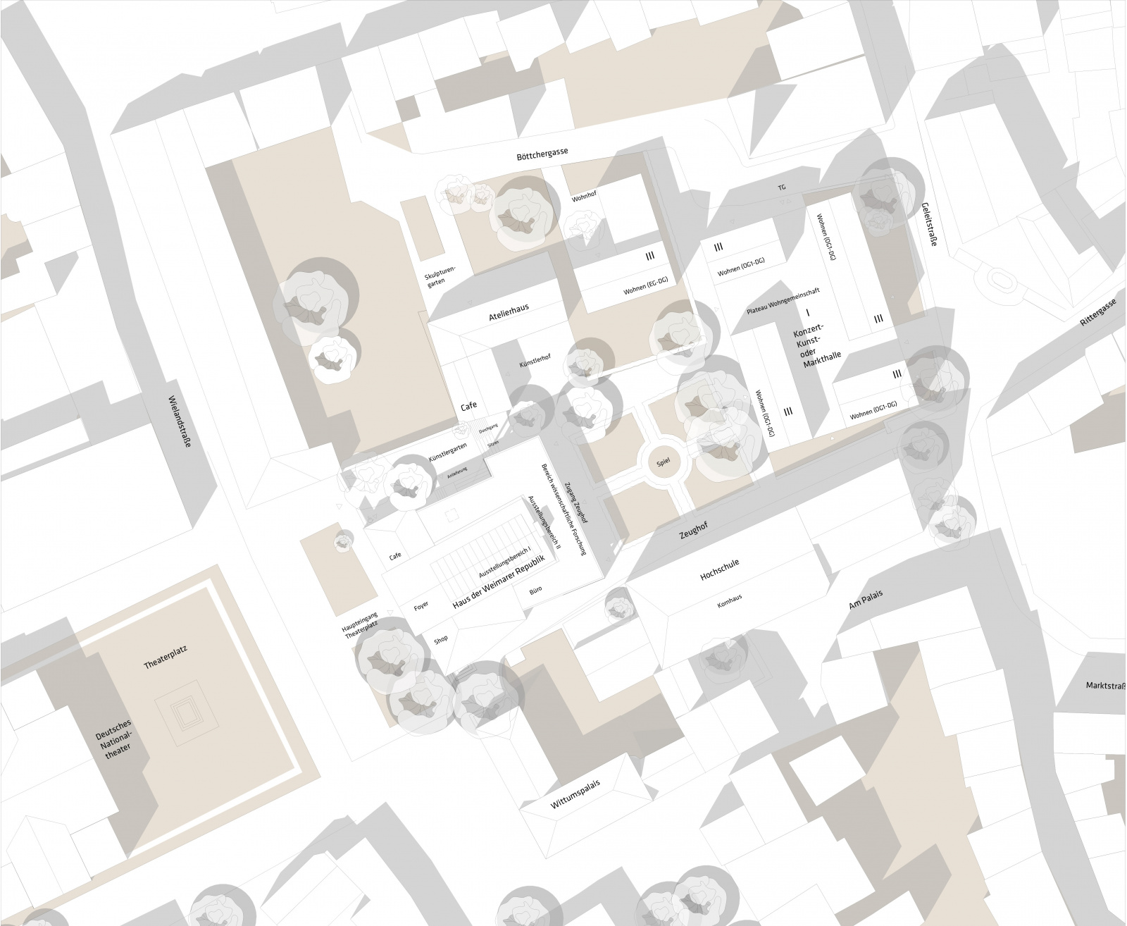
Als Bestandteil des Quartiers „Zeughof“ am östlichen Rand des Theaterplatzes in Weimar soll anlässlich des hundertjährigen Jubiläums der Gründung der Weimarer Republik im Jahr 1919 das derzeitig als Bauhaus-Museum genutzte Gebäude für ein „Haus der Weimarer Republik“ hergerichtet werden.

Dieses Vorhaben begründet sich darin, dass das Gebäude 2018 seiner bisherigen Nutzung enthoben sein wird und mit seiner Lage an einem geschichtlich authentischen Ort (gegenüber dem Deutschen Nationaltheater als Gründungsort der ersten deutschen Demokratie) dafür prädestiniert ist. Das Gebäude wird ein Ort der Forschung und der Projektarbeit zu Fragen der Demokratieentwicklung und deren Scheitern sowie ein Treffpunkt für politische und geschichtliche Bildungsangebote sein. Mit der Umsetzung des Vorhabens werden auch wesentlichen Ziele der Stadtplanung verfolgt und im Rahmen des Bundesprogramms Nationale Projekte des Städtebaus gefördert.

Mit dem Ziel, das Einzeldenkmal Theaterplatz 4, das derzeit als Bauhaus-Museum genutzt wird, zu sanieren und anschließend dem Verein Weimarer Republik e. V. zur Nutzung und zum Betrieb als „Haus der Weimarer Republik“ zur Verfügung zu stellen, lobte die Stadt Weimar diesen Wettbewerb aus. Zudem soll durch einen Erweiterungsbau im Bereich des ehemaligen Zeughauses eine Ergänzung erfolgen. Weiterhin soll der Bereich um das ehemalige Kulissenhaus/Zeughaus in die Betrachtung einbezogen werden. So waren Ideen zur stadträumlichen Einbettung des „Hauses der Weimarer Republik“ in das Umfeld ebenso gewünscht.

Am Wettbewerb teilnahmeberechtigt waren Architekten. Es wurde empfohlen, Landschaftsarchitekten und/oder Stadtplaner in einer Arbeitsgemeinschaft mit einzubeziehen. Die Wettbewerbssumme betrug 30.000 Euro (netto). Für den Wettbewerb wurden 61 Arbeiten zugelassen.

Das Preisgericht tagte am 27. und 28. April in Weimar unter Vorsitz des Kölner Architekten Walter von Lorn.

Ergebnis

1. Preis (12.000,00 EUR)

  • Muffler Architekten, Tuttlingen

2. Preis (7.500,00 EUR)

  • Osterwold°Schmidt Exp!ander Architekten BDA, Weimar

3. Preis (4.500,00 EUR)

  • BURUCKERBARNIKOL ARCHITEKTEN, Dresden/Erfurt

drei Anerkennungen (à 2.000,00 EUR)

  • Rustler Schriever Architekten, Berlin
  • Maria Frölich-Kulik, Weimar
  • Li-PE-Architekten, Stuttgart

Hinweis: Zusätzliche Ausstellung!

In Zusammenarbeit mit der Bauhaus-Universität Weimar werden die Wettbewerbsentwürfe zum „Haus der Weimarer Republik“  im Hauptgebäude der Universität, Geschwister-Scholl-Str. 8, nochmals präsentiert:

  • 16.06.–18.06.2017 - Oberlichtsaal: Wettbewerbsarbeiten des 1. Rundganges
  • 16.06.–03.07.2017 - Flur im 1. OG: Wettbewerbsarbeiten des 2. und 3. Rundganges sowie der Preisträger und Ankäufe

Am 19.06.2017 laden zudem die Kammergruppe Weimar Sömmerda der Architektenkammer und der Bund Deutscher Architekten Thüringen um 19:00 Uhr zu einem gemeinsamen Ausstellungsrundgang ein. Verschiedene Teilnehmer des Wettbewerbs werden ein paar Worte zu ihrem Entwurfsansatz sagen. Daran soll sich ein Gespräch über einen der
zentralsten Bebauungsstandorte Weimars anschließen. Die Veranstaltung ist offen für alle Interessierten. Der Eintritt ist frei.

Aus dem Preisgerichtsprotokoll zum 1. Preis

Städtebau
Mit einem sehr disziplinierten Einsatz der Gestaltungsmittel gelingt der Arbeit eine klare, in die angrenzenden Stadträume angemessen einbindende Grunddisposition. Die mittige Eingangssituation zum Theaterplatz mit seitlich angrenzender Garderobe und Museumsshop übernimmt unaufgeregt die vorgefundene Figur. Ebenso bleibt die Baukörperdisposition entlang des südlichen Durchganges zum Zeughof unverändert beibehalten. Ein komplementär hierzu neu hinzugefügter Erschließungsweg entlang der ebenfalls unveränderten Nordfassade schafft die gewünschte Erhöhung der Durchlässigkeit zwischen Theaterplatz und Zeughof. Die damit verbundene Option einer inhaltlichen, Verweilqualitäten schaffenden, Bespielung des nördlichen Vorplatzes wird leider nicht genutzt.
In Richtung Zeughof wird ein, das Ensemble geschickt ergänzender dreigeschossiger Neubau vorgeschlagen, welcher die vorhandenen Rudimente des Zeughauses nicht zu einem die historische Kubatur mehr oder weniger nachempfindenden Volumen komplettiert, sondern diese als Zeitzeugen einer unwiederbringlichen Vergangenheit unverändert erhält und in eine attraktive Abfolge von Innen- und Außenräumen einbindet. Mit dem Volumen des Ergänzungsbaus gelingt es zudem, die durch den Abriss des Zeughauses verloren gegangene Raumfassung des Theaterplatzes wiederherzustellen.
Die Hauptwegeverbindung in Richtung Donndorfbrunnen/Rittergasse wird folgerichtig erhalten, durch das Einrücken des Neubaus nach Norden und ein damit verbundenes zusätzliches Wegeangebot durch das Zeughausfragment sogar noch gestärkt. Die in Richtung Geleitstrasse und Böttchergasse neu formulierten Raumkanten sind grundsätzlich nachvollziehbar, Lage und Ausbildung der zusätzlichen Wegeverbindungen allerdings nur bedingt überzeugend. Kritisch gesehen werden die Dimension des eigentlichen Zeughofes als öffentlichem Freiraum und - damit verbunden - die Ausbildung und Ausdehnung des östlich daran angrenzenden Gebäudevolumens. (…)
Gestaltung
Während für den Gebäudebestand lediglich eine behutsame, die historischen Qualitäten wiederherstellende Behandlung vorgeschlagen wird, emanzipiert sich der Neubau zum Zeughof als ein gelungener Beitrag zum zeitgenössischen Bauen, ohne dabei die notwendige Zurückhaltung und Einbindung in den Gesamtkonzept vermissen zu lassen.
Die Kombination von großflächigen Verglasungen im Erdgeschoss mit ebenso zurückhaltend wie einprägsam gestalteten Stahl-Rundrohr-verkleideten Fassaden in den beiden Obergeschossen erzeugt eine als ausgesprochen positiv bewertete Anmutung des Neubaus, welche den - bislang als düster und muffig wahrgenommenen - Zeughof zu einem attraktiven innerstädtischen Raum aufwertet und auch dem Haus der Demokratie ein sehr angemessenes, nicht mit historischen Reminiszenzen belastetes Erscheinungsbild gibt. (…)

veröffentlicht am 05.05.2017 von Björn Radermacher · Rubrik(en): News, Wettbewerbe nach RPW: Ergebnisse

Diese Seite teilen

Die AKT in den sozialen Netzwerken